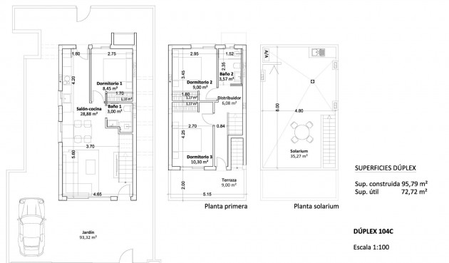
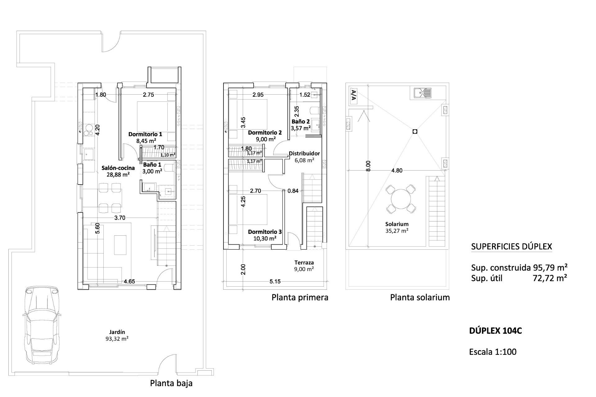
NYBYGD VILLA I TORRE DE LA HORADADA Nybygget villa i boligkompleks med felles svømmebasseng i Torre de la Horadada som ligger 800 meter fra stranden. Villaen har 3 soverom, 2 bad, åpen kjøkkenløsning med stue, garderober, terrasse, privat solarium, hage og parkeringsplass. Torre de la Horadada ligger sør for Alicante med en vakker beliggenhet ved kysten. De vakre strendene i Torre de la Horadada og Mil Palmeras har fin sand og en vakker strandpromenade. Det er mange restauranter, barer og butikker, og du kan også drive med vannsport, dykking og snorkling. Det er gode forbindelser, bare 40 minutter fra flyplassene i Alicante og Murcias Corvera, med store kommersielle kjøpesentre og flere golfbaner innen rekkevidde.