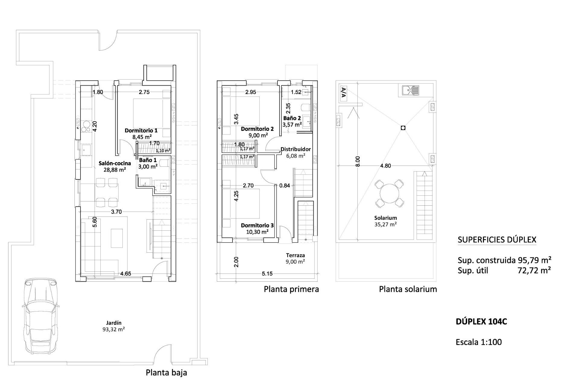
VILLA DE OBRA NUEVA EN TORRE DE LA HORADADA Villa de obra nueva en complejo residencial con piscina comunitaria en Torre de la Horadada situado a 800m de la playa. Villa dispone de 3 dormitorios, 2 baños, cocina americana con el salón, armarios empotrados, terraza, solarium privado, jardín y plaza de aparcamiento.. Torre de la Horadada se encuentra al sur de Alicante en una hermosa ubicación en la costa. Las hermosas playas de Torre de la Horadada y Mil Palmeras tienen arena fina hermoso paseo marítimo. Hay un montón de restaurantes, bares y tiendas, también deportes acuáticos, buceo y snorkel. Está bien comunicado a sólo 40 minutos de los aeropuertos de Alicante y Murcias Corvera, con grandes centros comerciales y múltiples campos de golf a poca distancia.