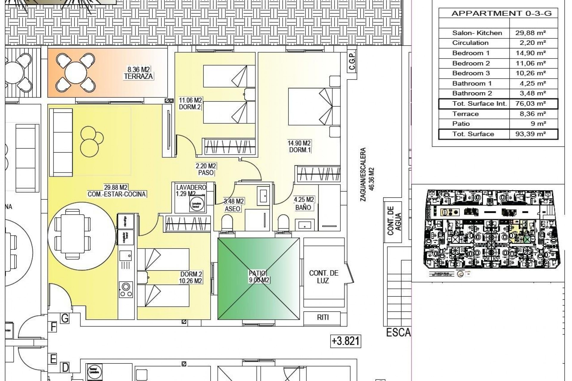
Moderne nybyggede leiligheter i sentrum av San Miguel de Salinas Moderne livsstil i et sunt middelhavsmiljø Dette nye boligprosjektet ligger i den sjarmerende byen San Miguel de Salinas, bare 10 km fra Middelhavet, og tilbyr den perfekte balansen mellom moderne komfort og naturlige omgivelser. Området er kjent for sine nærliggende saltsjøer og sitt eksepsjonelle mikroklima, som regnes som et av de sunneste i Europa. Denne fredelige, men livlige byen lar innbyggerne nyte den autentiske middelhavsstilen, samtidig som de har gangavstand til butikker, restauranter, supermarkeder og alle nødvendige tjenester. San Miguel de Salinas ligger litt inne i landet på Costa Blanca Sør, og tilbyr åpen utsikt, frisk luft og enkel tilgang til strender, golfbaner og shoppingområder. Stilfulle leiligheter designet for komfort og effektivitet Prosjektet består av to moderne bygninger adskilt av et felles hageområde. Totalt er det 56 moderne leiligheter med 1, 2 eller 3 soverom, hver med egen terrasse. Alle boligene er designet med tanke på komfort, estetikk og energieffektivitet, med bruk av materialer av høy kvalitet og moderne isolasjonssystemer. Hver leilighet har: Pansret inngangsdør Bad med servantskap Forhåndsinstallert luftkanal-klimaanlegg Energisertifikat klasse A Planløsningen og orienteringen av boligene sikrer naturlig lys hele dagen, og skaper lyse og innbydende interiører som er ideelle både for permanent boende og feriebruk. Eksepsjonelle fellesarealer for avslapning og sosialt liv Fellesarealet i første etasje er designet som det sosiale hjertet i prosjektet, omgitt av anlagte hager, sittegrupper, sykkelparkering og en lekeplass for barn. Det er et ideelt møtested for beboere i alle aldre. På taket venter et imponerende fritidsområde på 350 m2. Dette området inkluderer et 70 m2 stort svømmebasseng med et separat barnebasseng, pergolaer, solsenger og skyggefulle områder, slik at beboerne kan slappe av mens de nyter panoramautsikten. Taket er lett tilgjengelig med en av de tre heisene og inkluderer sanitæranlegg for ekstra komfort. Utmerket beliggenhet nær viktige severdigheter Middelhavsstrender 10 km Zenia Boulevard kjøpesenter 9 km Villamartin Golf 6 km Las Colinas Golf 8 km Torrevieja Marina 12 km Alicante lufthavn 60 km Murcia Corvera lufthavn 55 km En smart investering i Costa Blanca Sør Dette boligkomplekset kombinerer moderne arkitektur, kvalitetsfinish og en førsteklasses sentral beliggenhet, noe som gjør det til et utmerket valg for å bo, nyte ferien eller investere i utleie. Kontakt oss i dag for mer informasjon eller for å avtale en visning av disse moderne leilighetene i San Miguel de Salinas.