Apartment | New Build San Miguel de Salinas · Pueblo

Ref. NB-83052 190.000€

Apartment | New Build San Miguel de Salinas · Pueblo

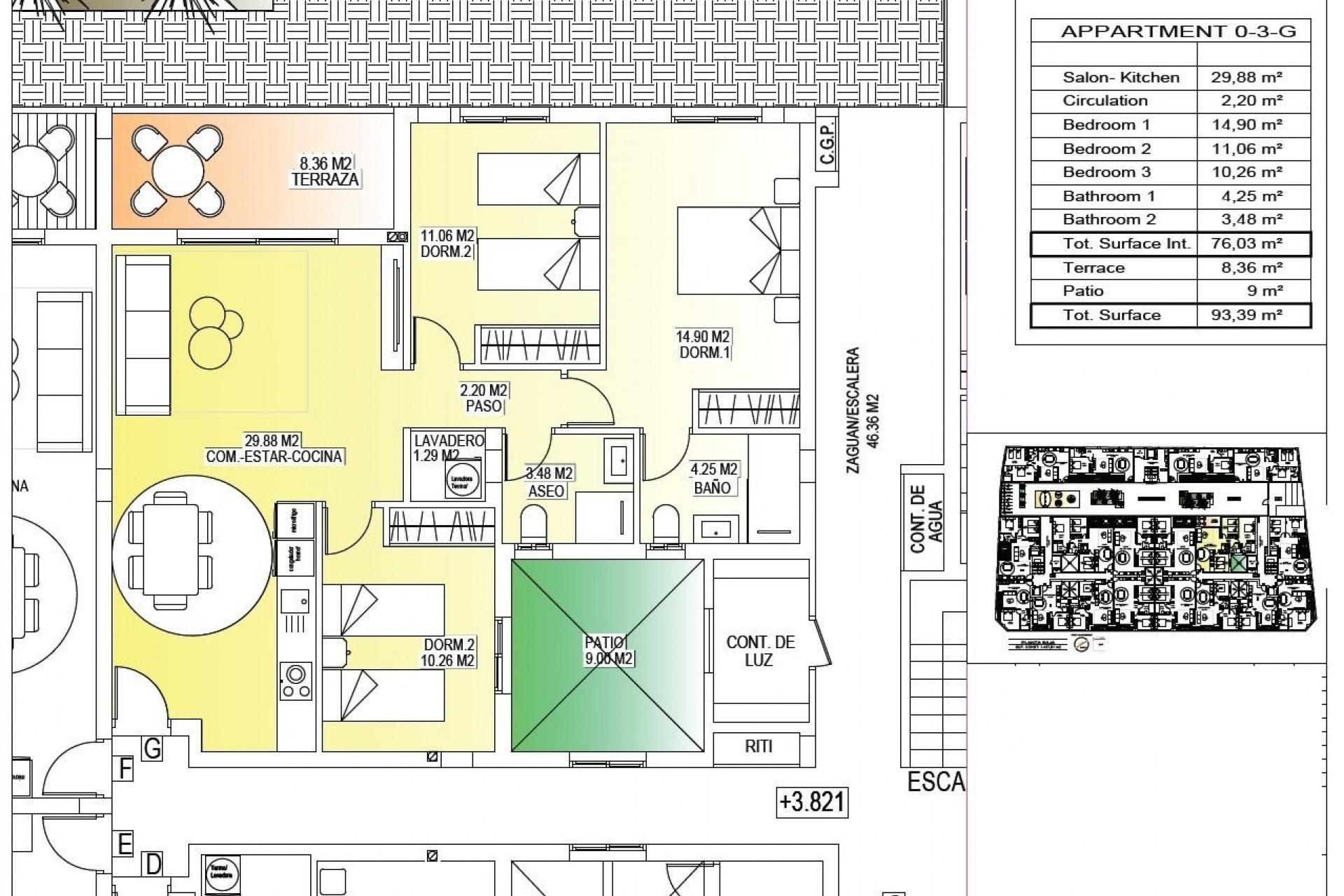
  • 93m2
  • 3
  • 2
  • Yes

Features

Bedrooms: 3
Bathrooms: 2
Built: 93m2
Pool: Yes
Elevator/Lift
Near Schools
Double Bedrooms: 3
Communal Pool
Near Childrens Parks
Near Bus Route
Air Conditioning: Pre-Installed
Location: Rural, Urbanisation
Space
Terrace: 17 Msq.
Beach: 10000 Meters
Useable Build Space: 76 Msq.

Description

Map

WhatsApp