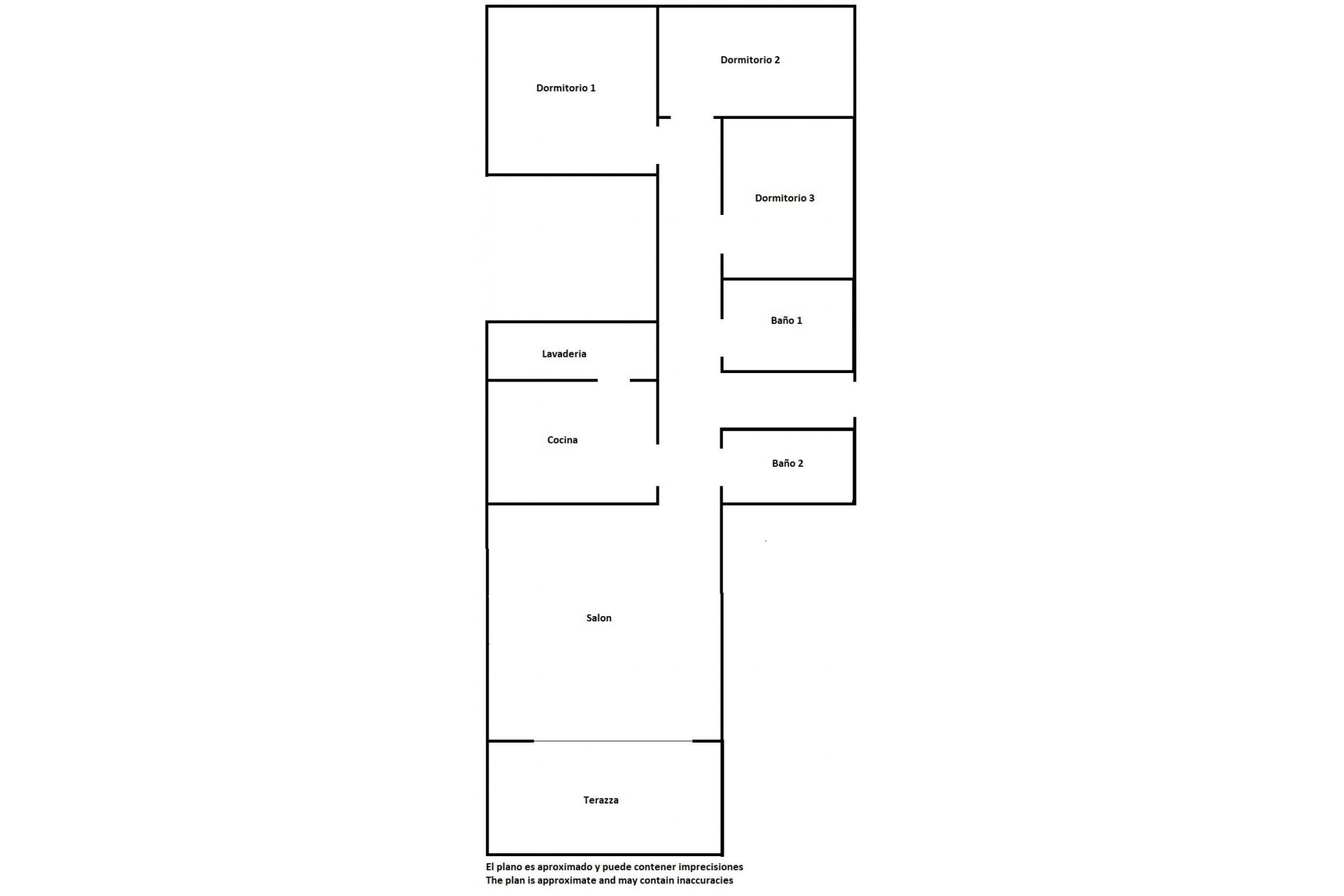
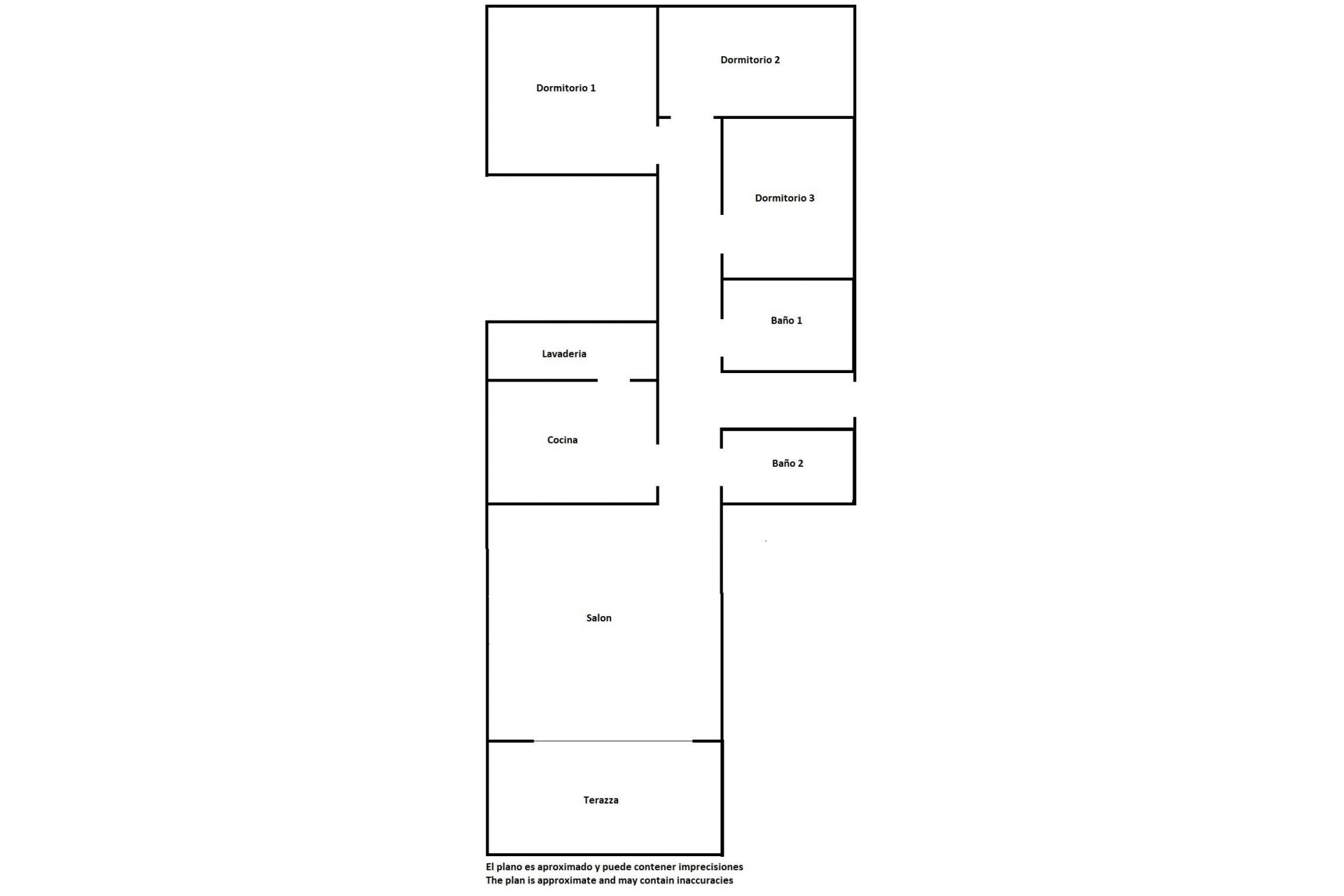
Til salgs: romslig og lys leilighet på 104 m² med 3 soverom, 2 bad og en funksjonell planløsning. Leiligheten er i utmerket stand, fullt møblert og klar for innflytting. Med østvendt orientering og klimaanlegg gir den komfort året rundt. Kun 250 meter fra Playa del Cura, i et av de mest ettertraktede områdene i Torrevieja, nær strandpromenaden, butikker, restauranter og alle nødvendige fasiliteter. Perfekt som fast bolig eller som en lønnsom investering for ferieutleie takket være stor turistetterspørsel året rundt.