Apartment | Resale Torrevieja · Playa del Cura

Ref. BO-96550 200.000€

Apartment | Resale Torrevieja · Playa del Cura

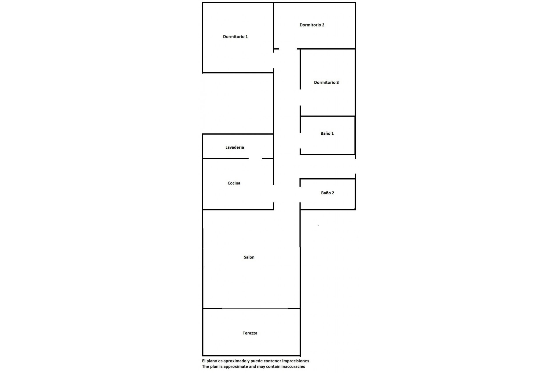
  • 125m2
  • 3
  • 2

Features

Bedrooms: 3
Bathrooms: 2
Built: 125m2
Heating: Yes, Air Conditioning: Yes
Laundry Room
Furnished
Elevator/Lift
Views: Sea
Near Commercial Center
Double Bedrooms: 3
Near Childrens Parks
Near Bus Route
Location: Coastal
Useable Build Space: 104 Msq.
Beach: 250 Meters

Description

Map

WhatsApp