Apartment | Nybygg Orihuela Costa · Lomas de Cabo Roig

Apartment | Nybygg Orihuela Costa · Lomas de Cabo Roig

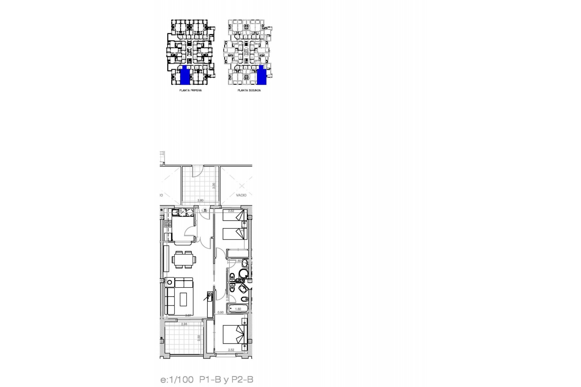
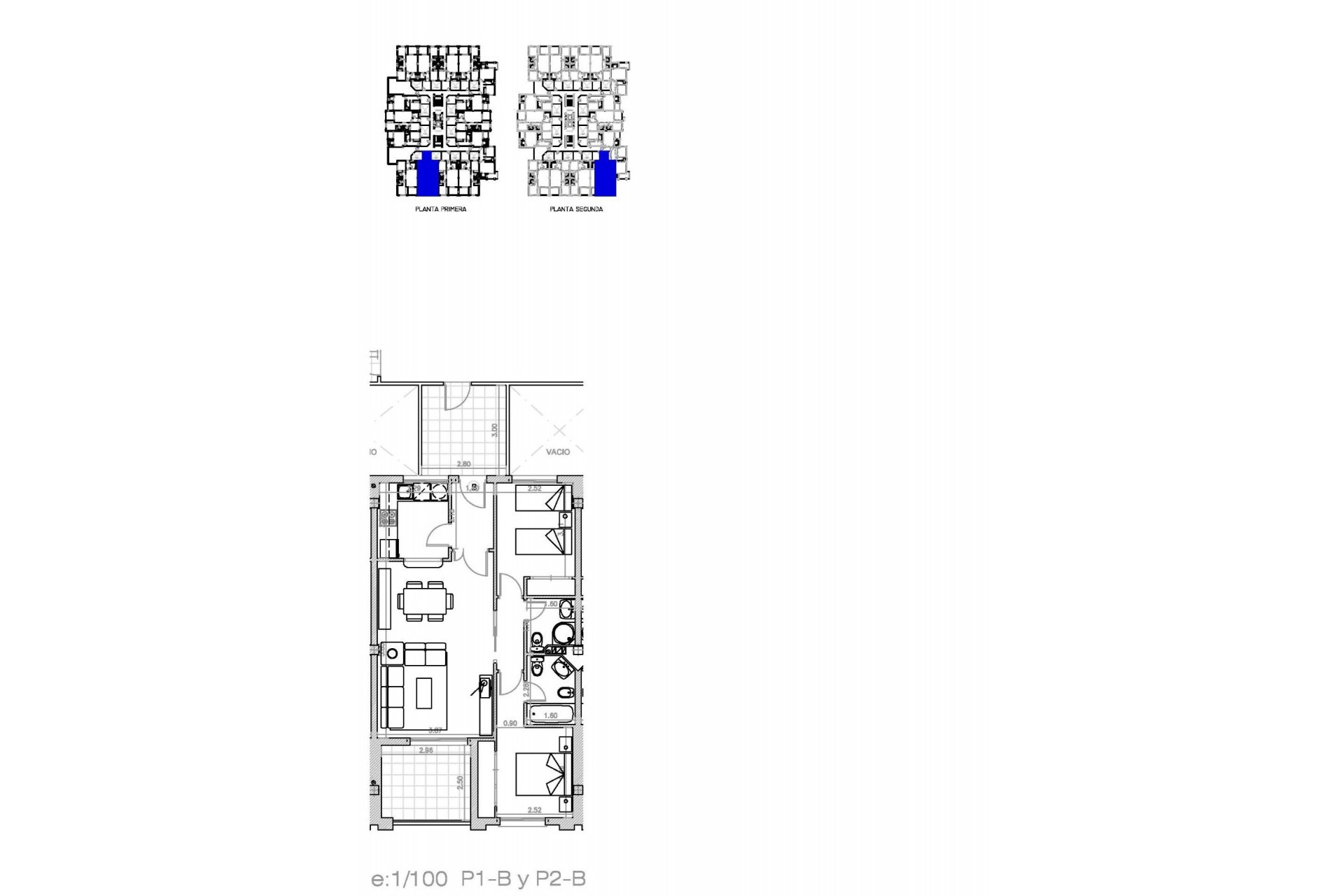
  • 69m2
  • 2
  • 2
  • Ja

Funksjoner

Soverom: 2
Bad: 2
Inne: 69m2
Basseng: Ja
Elevator/Lift
Gated
Beach: 2000 Meters
Near Schools
Near Commercial Center
Location: Coastal, Urbanisation
Communal Pool
Near Trees
Double Bedrooms: 2
Useable Build Space: 60 Msq.
Key Ready
Terrace: 17 Msq.
Parking - Space

Beskrivelse

Kart

WhatsApp