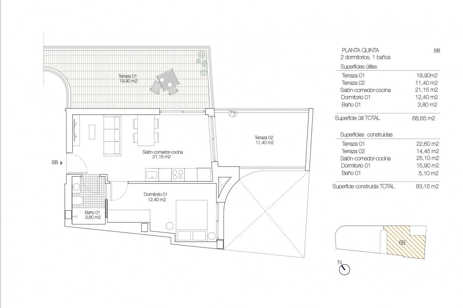
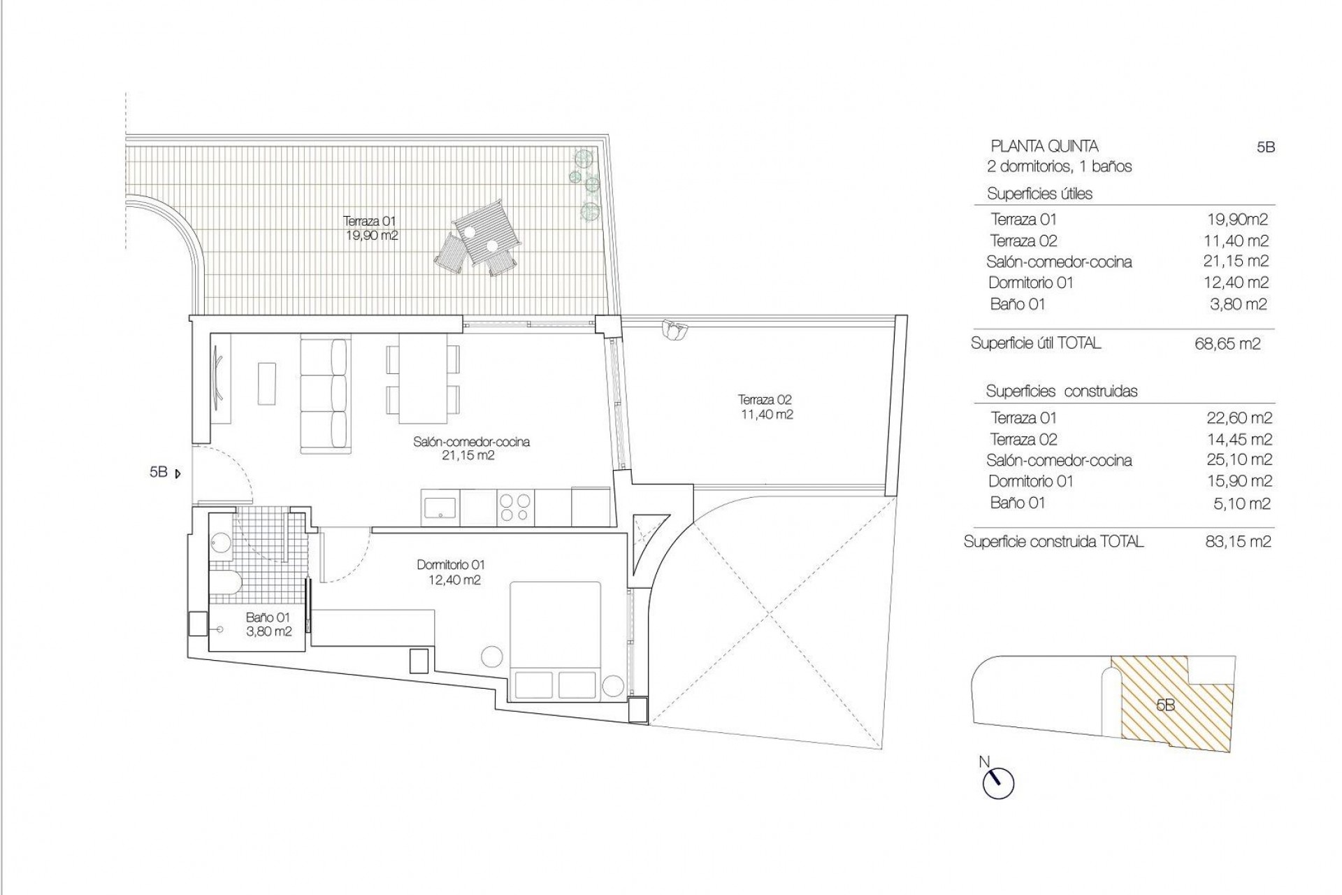
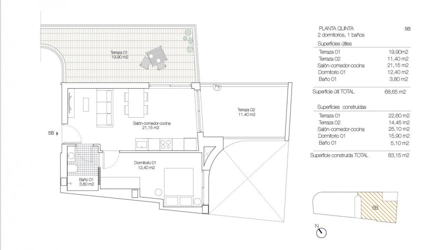
NYBYGDE LEILIGHETER OG TOPPLEILIGHETER NÆR STRANDEN I TORREVIEJA Nybygde leiligheter med en av de beste beliggenhetene du kan finne, som ligger 50 meter fra Los Locos-stranden. Bolig består av leiligheter med 2 og 3 soverom og toppleiligheter med 1 og 2 soverom, åpen planløsning med romslig planløsning, kjøkken utstyrt med topp merkevareapparater og garderober, fullt utstyrte bad med gulvvarme. Nybygget boligkompleks med moderne design og finish av høy kvalitet. Torreviejas Playa de Los Locos har en hyggelig promenade med en rekke barer, restauranter og chiringuitos hvor du kan nyte autentiske spanske paellaer. Torrevieja er en spansk by i provinsen Alicante, på Costa Blanca. Den er kjent for sitt typiske middelhavsklima og kystlinje. Den har strandpromenader med feriesteder langs sandstrendene. Det lille hav- og saltmuseet har utstillinger om byens fiske- og salthistorie. I innlandet har naturparken Lagunas de La Mata-Torrevieja stier og to salte laguner, en rosa og en grønn. Alicante flyplass ligger 40 minutter unna og Murcia flyplass ca. 1 time unna.
Denne informasjonen gitt her er underlagt feil og inngår ikke i noen kontrakt. Tilbudet kan endres eller trekkes tilbake uten varsel. Prisene inkluderer ikke andre kostnader
Bonavida Spain © 2026 Cookies & Privatliv · Juridisk merknad · Forpliktelse · Web kart · Etisk kanal.
Design: Mediaelx
Først av alt, takk for at du kontakter oss.
Først av alt, takk for at du kontakter oss.
Vi har mottatt en forespørsel om en rapport hvis du senker prisen på eiendommen med referansen: NB-53926
I mellomtiden, ta en titt på dette valget av lignende egenskaper, som kan være av interesse for deg: