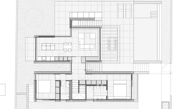
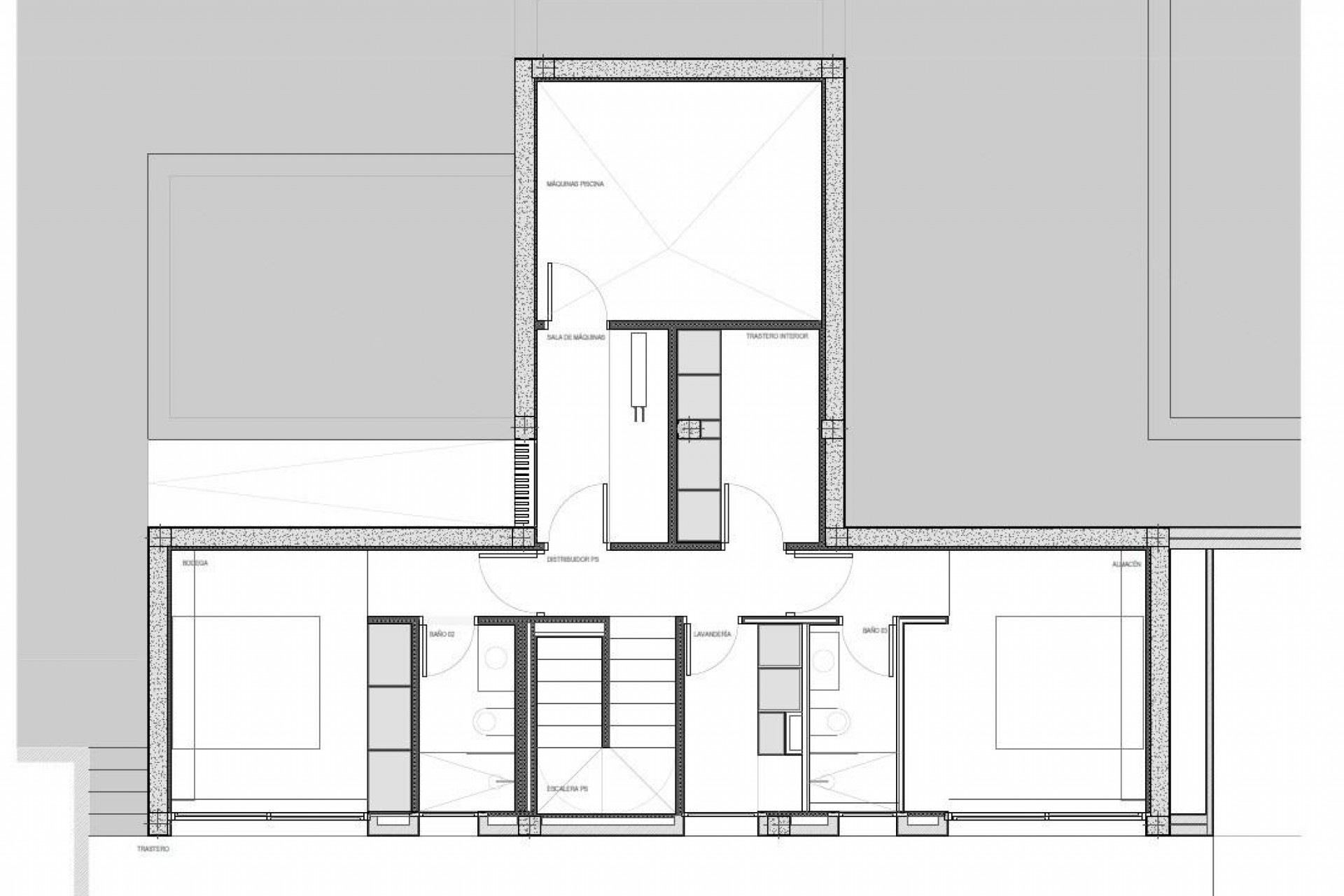
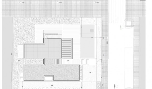
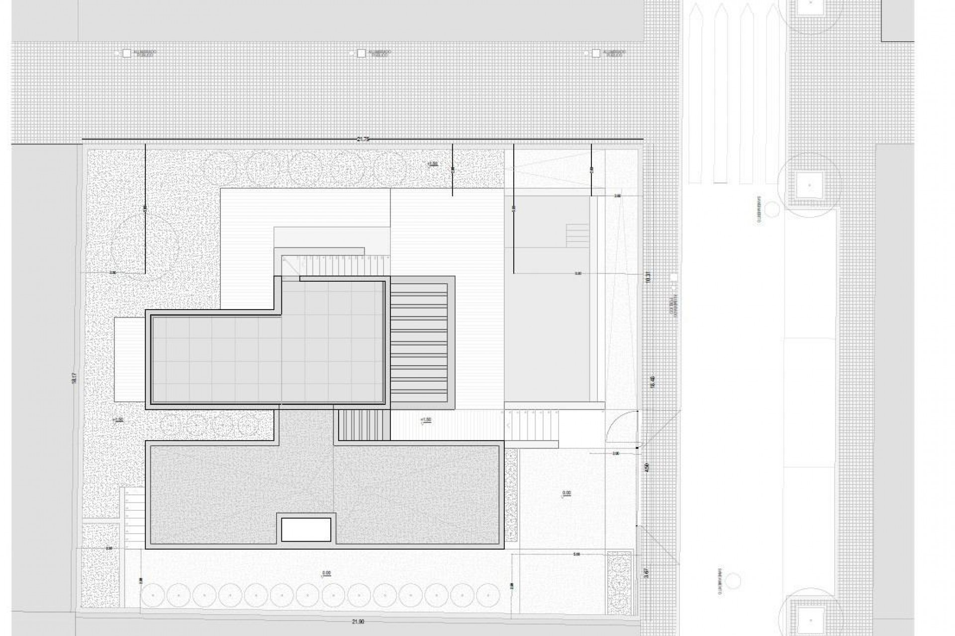
Nøkkelferdig nybygget villa med havutsikt i La Alberca Polop Luksuriøs moderne villa i naturskjønne fjellomgivelser Denne nøkkelferdige, moderne villaen ligger i La Alberca, et rolig boligområde i Polop, omgitt av skog og fjell. Eiendommen ligger høyt oppe og har panoramautsikt over Middelhavet, fjellene og det historiske sentrum av Polop. Villaen tilbyr privatliv, ro og gode forbindelser til kysten og nærliggende byer. Polop er en sjarmerende landsby i Marina Baixa-regionen på Costa Blanca, kjent for sin tradisjonelle karakter og naturlige omgivelser. Eiendommen ligger i nærheten av alle tjenester i La Nucia, inkludert butikker, restauranter, idrettsanlegg og skoler, mens strendene og de livlige kystbyene ligger bare en kort kjøretur unna. Romslig planløsning over hovedetasje, kjeller og solarium Villaen er fordelt på hovedetasje, kjeller og solarium på taket, og tilbyr generøs boareal og fleksibilitet. På hovedetasjen fører en innbydende entré med innebygd garderobe til to soverom med eget bad, inkludert en master suite med hevbare vindusdører som åpner ut mot en Juliette-balkong og terrasse. Den åpne stuen og spisestuen er sømløst koblet til en overbygd pergola-terrasse og et privat saltvannsbasseng. Kjelleren har to ekstra soverom med eget bad og store vinduer, et fleksibelt lekerom eller kinorom med vann- og strømtilkoblinger for en bar, et fullt utstyrt vaskerom med Haier-apparater og to tekniske oppbevaringsrom. Solariet på taket gir et stort uteområde med panoramautsikt over havet og er forberedt for fremtidig installasjon av solcellepaneler. Et utekjøkken, flere oppbevaringsskap og en hage i middelhavsstil med automatisk vanning fullfører eksteriøret. Høyteknologiske funksjoner og energieffektivitet Denne villaen skiller seg ut med sin førsteklasses finish og avanserte installasjoner, inkludert: Sentral kjøkkenøy med integrerte BOSCH-apparater Benkeplater i naturstein innendørs og utendørs Forhåndsinstallert gulvvarme Mitsubishi aerotermisk klimaanlegg Energieffektivitetsklasse A Forhåndsinstallert for smarthjem-system Saltvannsbasseng med valgfri oppvarming Privat parkering for to biler Store vinduer med solbeskyttelsesglass maksimerer naturlig lys samtidig som de sikrer komfort og sikkerhet. Utmerket beliggenhet og avstander Polop sentrum 2 km La Nucia 4 km Benidorm 12 km Altea 10 km Strender 10 km Villaitana Golf 14 km Alicante lufthavn 65 km Sikre deg ditt drømmehus i Polop Denne eksepsjonelle nøkkelferdige villaen kombinerer privatliv, design og panoramautsikt i et av de mest attraktive innlandsområdene på Costa Blanca. Kontakt oss i dag for å avtale en privat visning og gjør denne luksuriøse villaen i La Alberca Polop til ditt nye hjem.