Villa | Nybygg Algorfa · La Finca Golf

Villa | Nybygg Algorfa · La Finca Golf

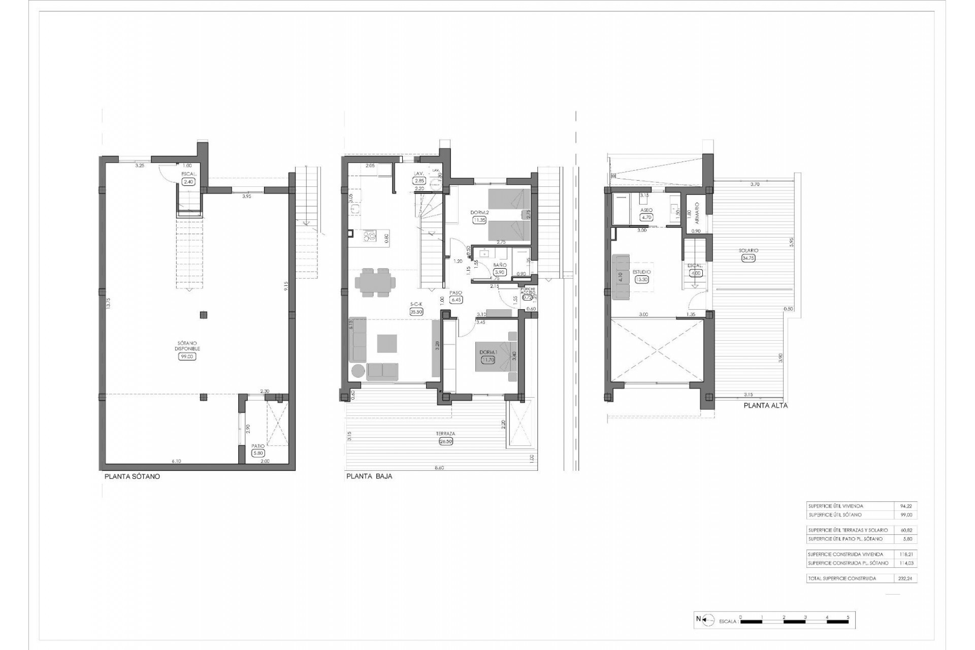
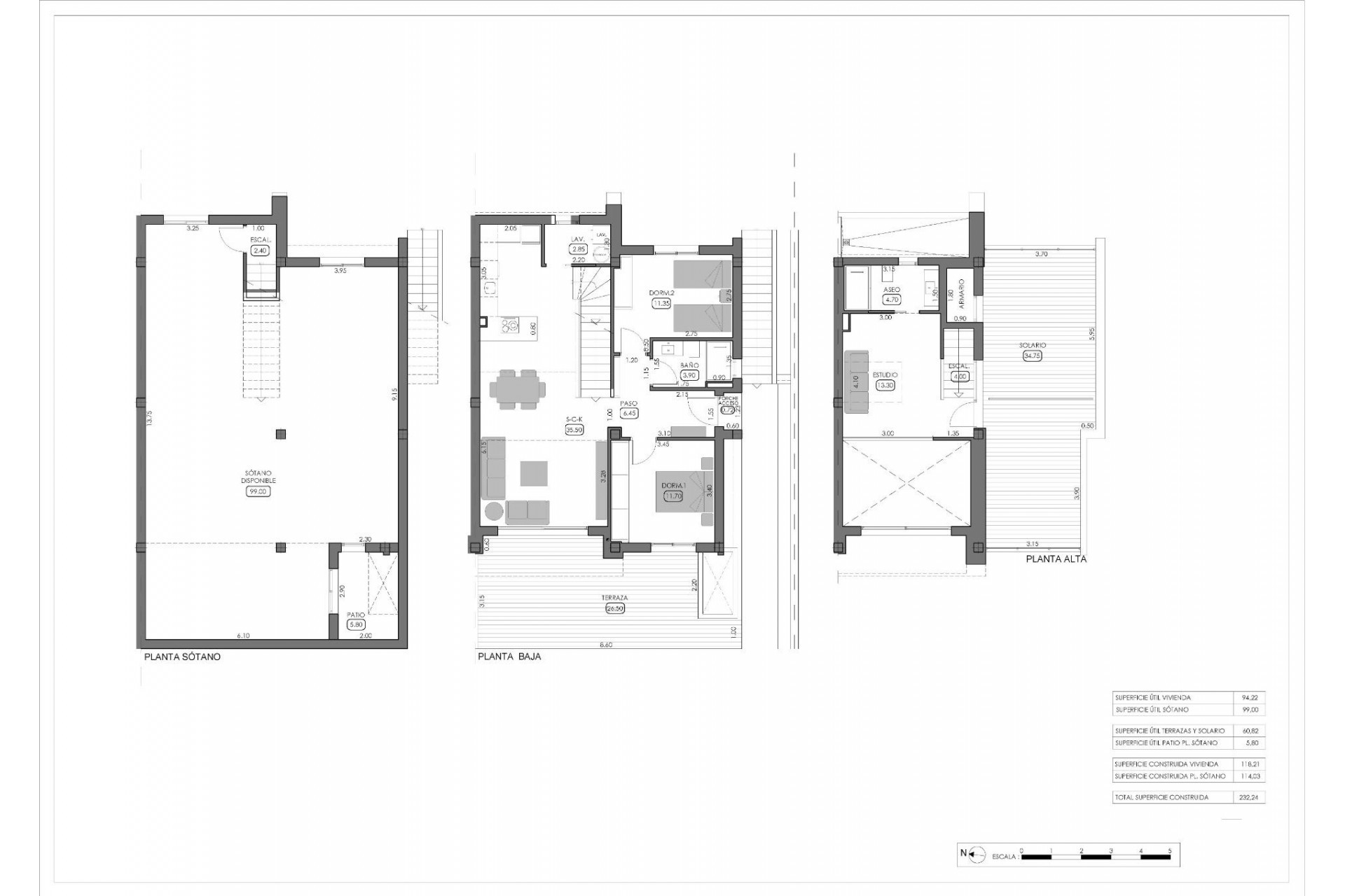
  • 232m2
  • 292m2
  • 3
  • 2
  • Ja

Funksjoner

Soverom: 3
Bad: 2
Inne: 232m2
Plott: 292m2
Basseng: Ja
Private pool
Garden
Gated
Near Schools
Under-Build / Basement
Double Bedrooms: 3
Solarium: Yes
Number of Parking Spaces: 1
Near Golf / Golf Resort Property
Location: Rural, Urbanisation
Useable Build Space: 94 Msq.
Terrace: 60 Msq.
Parking - Space
Beach: 14000 Meters
Laundry Room

Beskrivelse

Kart

WhatsApp