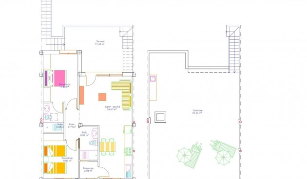
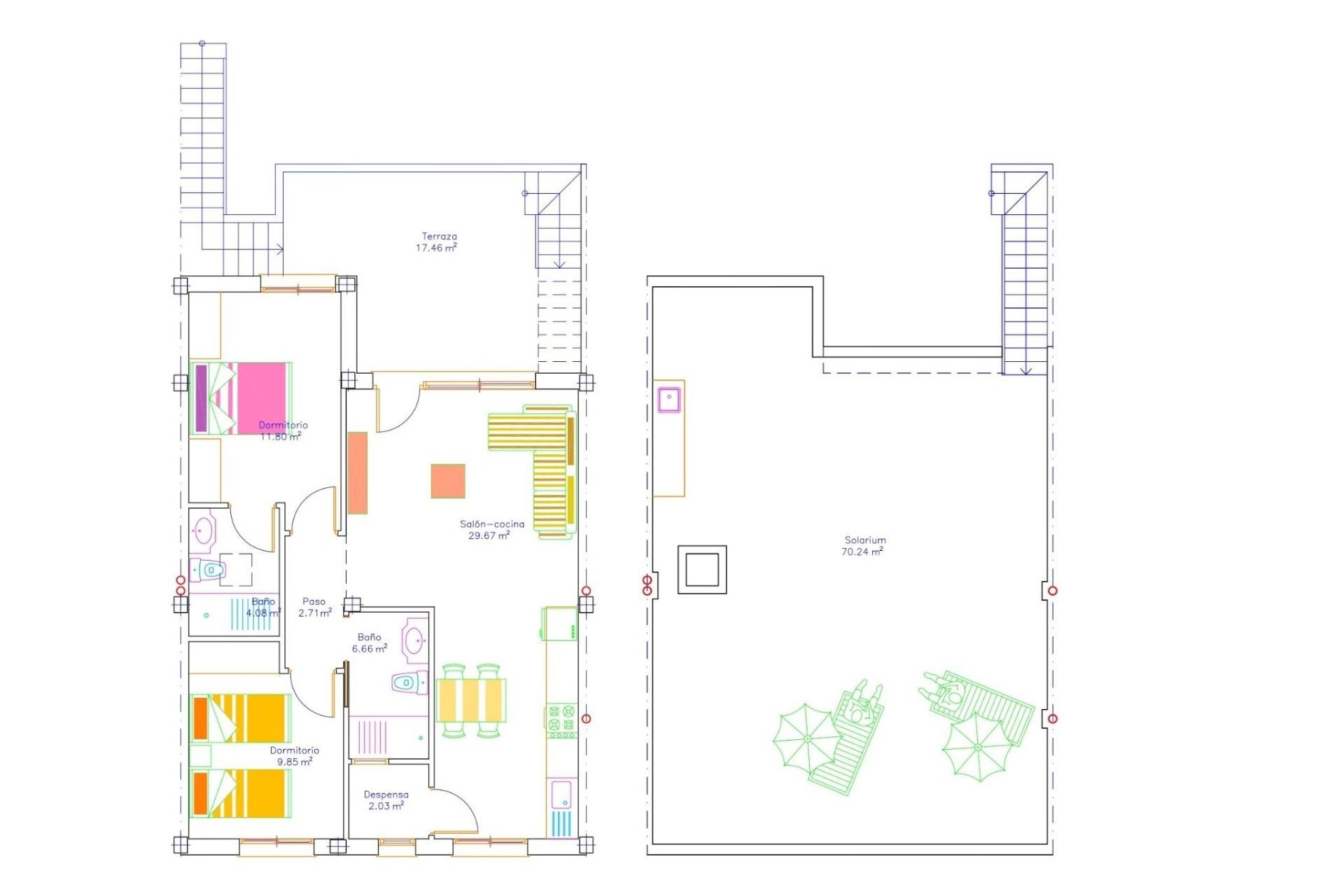
Moderne leiligheter og penthouse med solarium i San Javier nær Mar Menor Førsteklasses beliggenhet i San Javier nær stranden Dette nye boligprosjektet med 16 moderne boliger ligger i den livlige byen San Javier i Murcia, bare 3,5 km fra det rolige vannet i Mar Menor. Området er kjent for sitt solrike klima året rundt, avslappede kystliv og gode tjenester. Innen gangavstand finner du supermarkeder, restauranter, idrettsanlegg og daglige fasiliteter, noe som gjør dette til et ideelt sted både for permanent opphold og ferieturer. Middelhavskysten ligger bare en kort 10-minutters kjøretur unna, og byr på et bredt utvalg av strender og strandpromenader. Valg mellom første etasje med hage eller øverste etasje med privat solarium Kjøpere kan velge mellom leiligheter i første etasje med 3 soverom og 2 bad, hvorav det ene er en suite, med terrasse foran og privat hage bak med sommerkjøkken. Alternativt tilbyr leilighetene i øverste etasje 2 soverom og 2 bad, også med en suite, terrasse foran og et stort privat solarium med sommerkjøkken, perfekt for å nyte solen hele året. Hver planløsning er nøye utformet for å maksimere utendørsoppholdet og naturlig lys. Attraktive fellesarealer for avslapning Boligkomplekset har et vakkert anlagt fellesareal med svømmebasseng med boblebad, sykkelparkering og grønne hager hvor beboerne kan slappe av og sosialisere i fredelige omgivelser. Kvalitetsfunksjoner designet for moderne komfort Hver bolig er bygget etter høye standarder for komfort og energieffektivitet. Utvendig snekring i antrasitt PVC med termisk brytning og doble vinduer gir utmerket isolasjon og solbeskyttelse. Kjøkkenene er fullt utstyrt med hvitevarer. Boligene har forhåndsinstallert kanalisert klimaanlegg og et aerotermisk system for varmt vann, som sikrer lavere energiforbruk. Badene leveres med servantskap, speil og dusjvegg. Hver bolig har også en tildelt parkeringsplass. Utmerket tilknytning og nærliggende severdigheter San Javier tilbyr utmerkede veiforbindelser og enkel tilgang til viktige destinasjoner i regionen. Mar Menor-strendene 3,5 km Middelhavsstrendene 10 km Roda Golf og Mar Menor Golf 8 km Los Alcazares Marina 7 km Murcia Corvera flyplass 30 km Alicante flyplass 75 km Zenia Boulevard kjøpesenter 30 km Nyt middelhavslivet i San Javier Dette prosjektet tilbyr den perfekte kombinasjonen av beliggenhet, komfort og friluftsliv nær sjøen og golfbaner. Kontakt oss i dag for mer informasjon eller for å avtale en visning av ditt fremtidige hjem i San Javier.