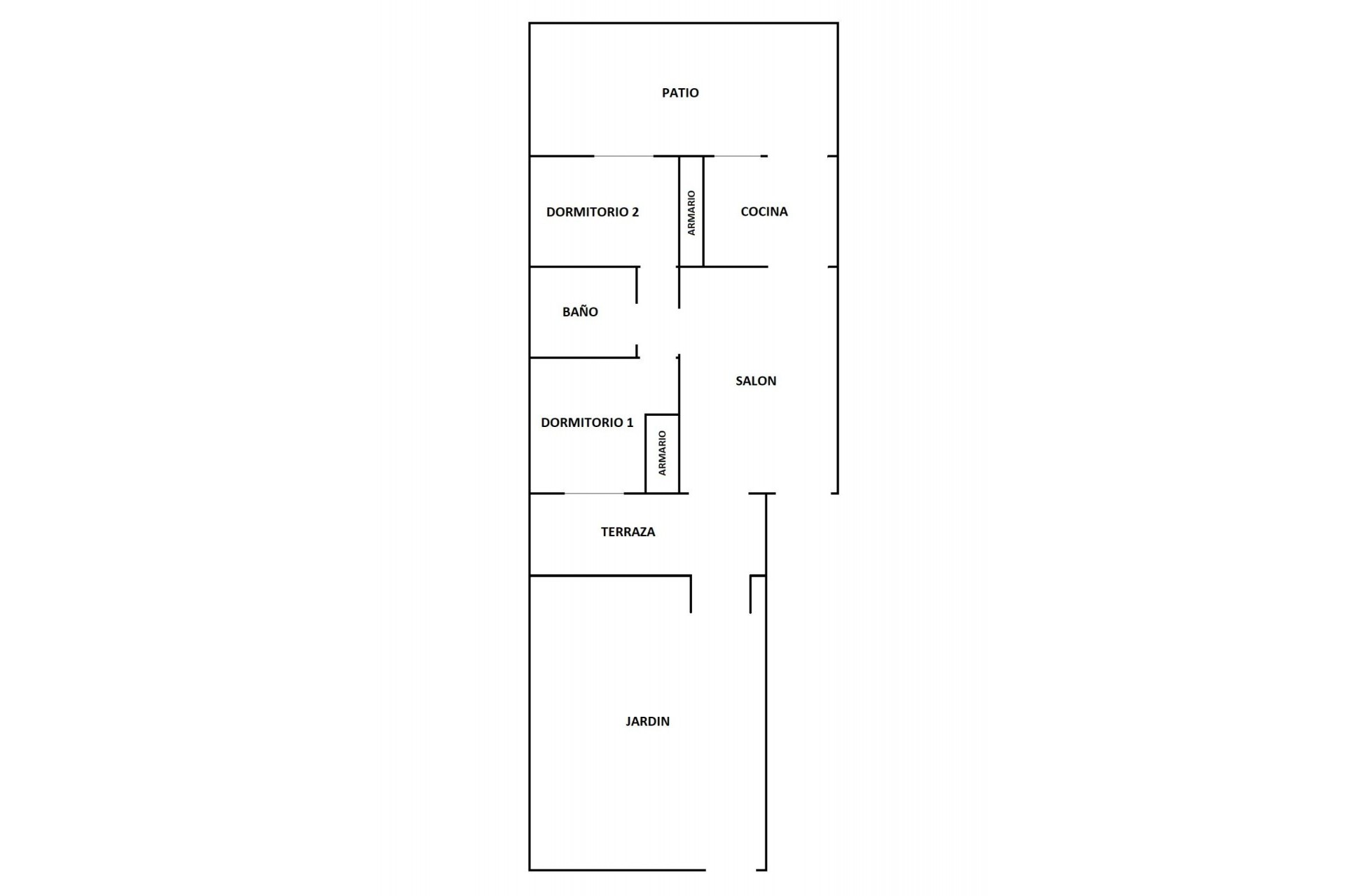
Til salgs: 2-roms bungalow med 36 m² tomt med belegningsstein, subtropisk hage med kanarifugler, i et sameie med svømmebasseng og parkering. Bungalowen ligger i området Lomas Cabo Roig, på Castillo del Río-gaten i Orihuela Costa, Alicante-provinsen, Spania. Rolig og pittoresk beliggenhet med utsikt over parken og havet. I nærheten finnes den engelske supermarkedet Iceland, kaféer og små butikker. Bungalowen har 75 m² bebygd areal, 36 m² hage, en innvendig patio/vaskerom på 19 m² og en terrasse på 15 m² ved inngangen. Bygget i 2005. Planløsning: stue med separat kjøkken og patio, 2 soverom og fullt bad. Til salgs i utmerket stand, ingen oppussing nødvendig, med møbler og hvitevarer