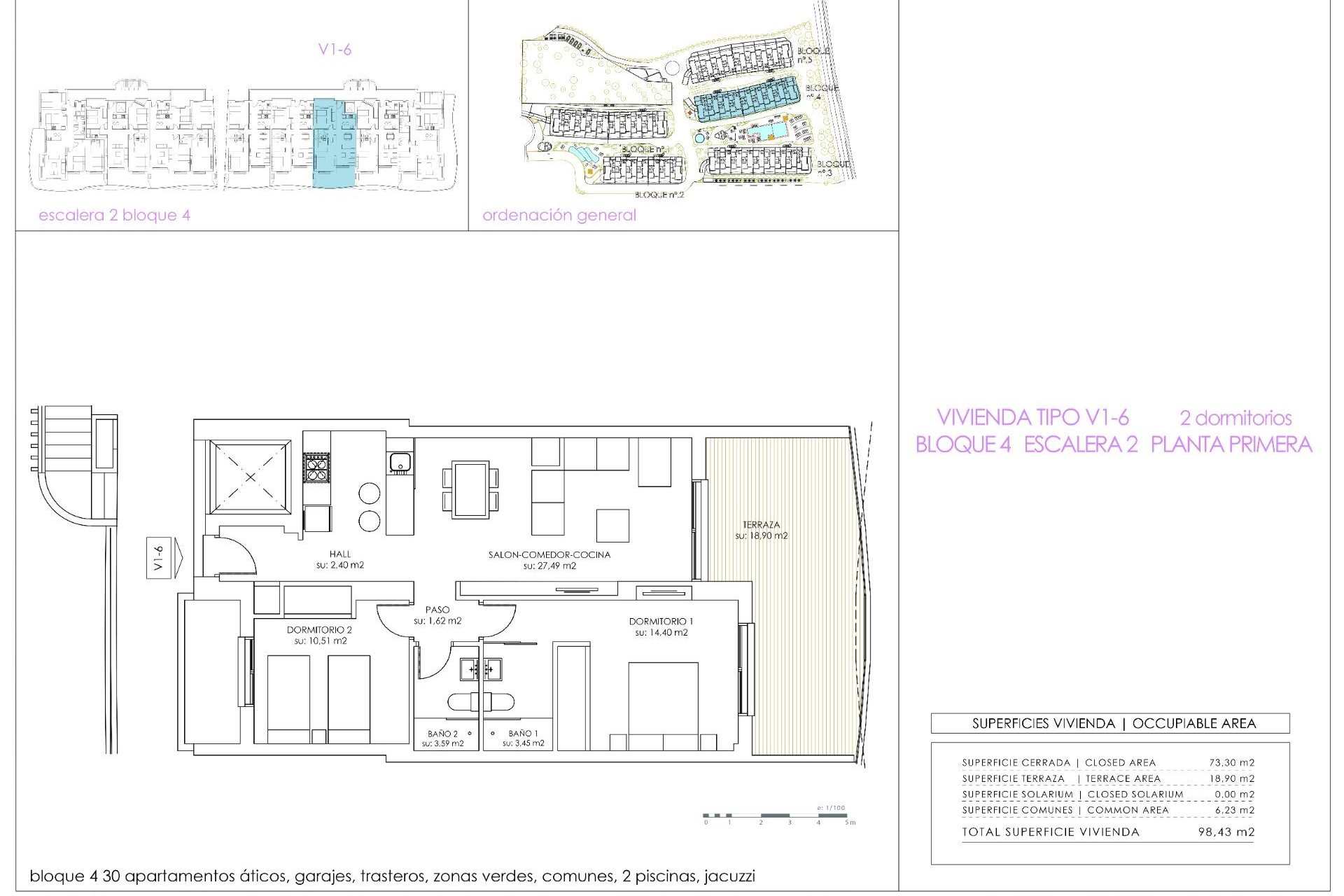
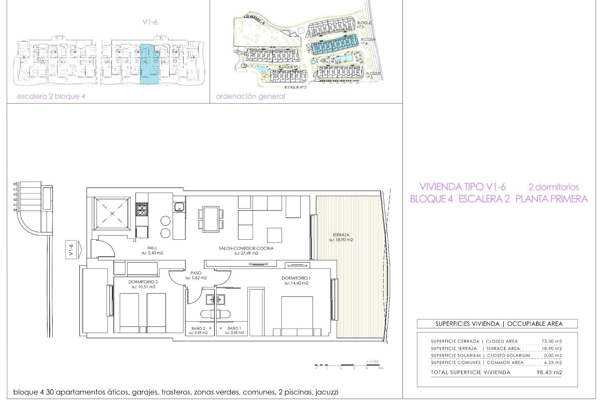
NYBYGG BOLIG PÅ PLAYA FLAMENCA!!! Fra en veletablert utvikler er vi stolte over å kunne tilby dette nettopp utgitte nye boligområdet kun 500 m fra havet ved populære Playa Flamenca (Orihuela Costa). Bolig med fine fellesbassenger, boblebad og fine felleshager. Alle tjenester som supermarkeder, barer og restauranter, osv. er innen gangavstand på et meget sentralt sted ved Orihuela Costa. Stort utvalg av typer å velge mellom: leiligheter med 2, 3 eller 4 soverom. Lave etasjer med private hager eller toppetasjer med private solarier. Alle husene kommer med parkeringsplass og bod inkludert i prisen. Zenia Boulevard kjøpesenter 1 km unna, og flere golfbaner som Villamartin, Campoamor innen 5 km fra dette boligområdet vil gjøre en ideell beliggenhet for ferien eller permanent opphold.