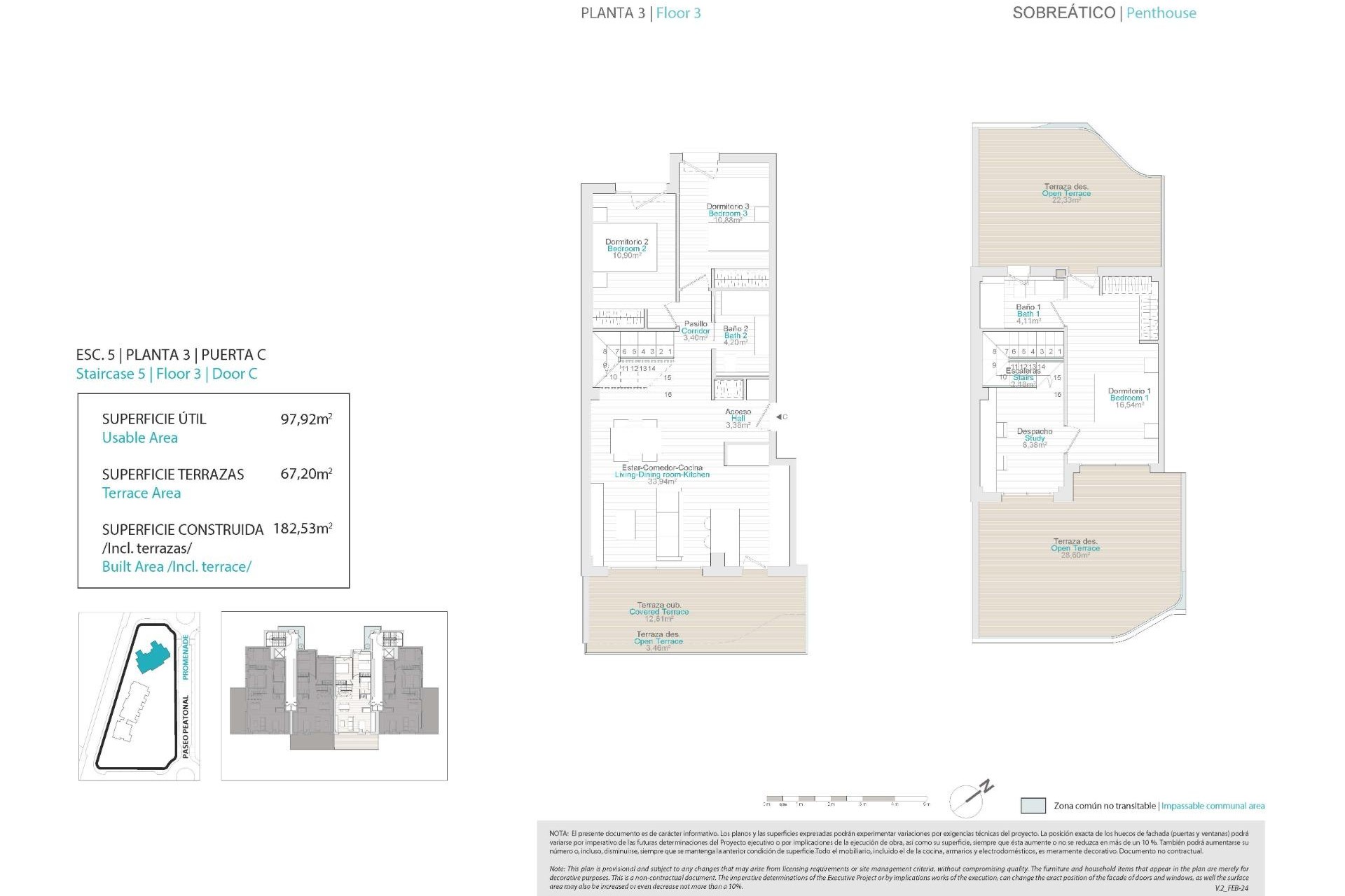
NYBYGGKOMPLEKS I VILLAYOJOSA Nybygget boligkompleks med 42 leiligheter og toppleiligheter i Villayojosa ligger bare noen få skritt fra stranden. Luksusleiligheter med 1, 2 og 3 soverom designet ned til minste detalj. Leilighetene ligger bare 200 meter fra sjøen og har romslige terrasser som er perfekte for å slappe av og nyte havutsikten. Denne kampanjen ligger i naturskjønne omgivelser og har svømmebasseng, hager, barneområde, utstyrt treningsstudio og badstue. Leiligheter i første etasje med 1 soverom og 1 bad med terrasser og private hager. Leiligheter med 1 og 2 soverom og 1 og 2 bad med store terrasser med overbygd og åpent område. Toppleiligheter med 3 soverom og 2 bad med terrasser og privat solarium. Alle eiendommene har privat parkeringsplass. Villajoyosa er en skjult perle på den spanske Costa Blanca. Denne fargerike fiskerlandsbyen ligger mellom Benidorm og El Campello, ca. 30 minutter med bil fra flyplassen i Alicante. I løpet av de siste årene har den idylliske byen blitt et ettertraktet sted for fritidsboende og turister. Villajoyosa har mye å by på, fra den brede sandstranden til de smale og fargerike gatene i det historiske sentrum. I dag bor det over tretti tusen mennesker i Villajoyosa, og ikke minst gir de fargerike husene mye inspirasjon til de mange kunstnerne. Villajoyosa er også kjent for det deilige Valor-sjokoladefabrikkmuseet.