Bungalow | Nybygg Torrevieja · Los Balcones

Bungalow | Nybygg Torrevieja · Los Balcones

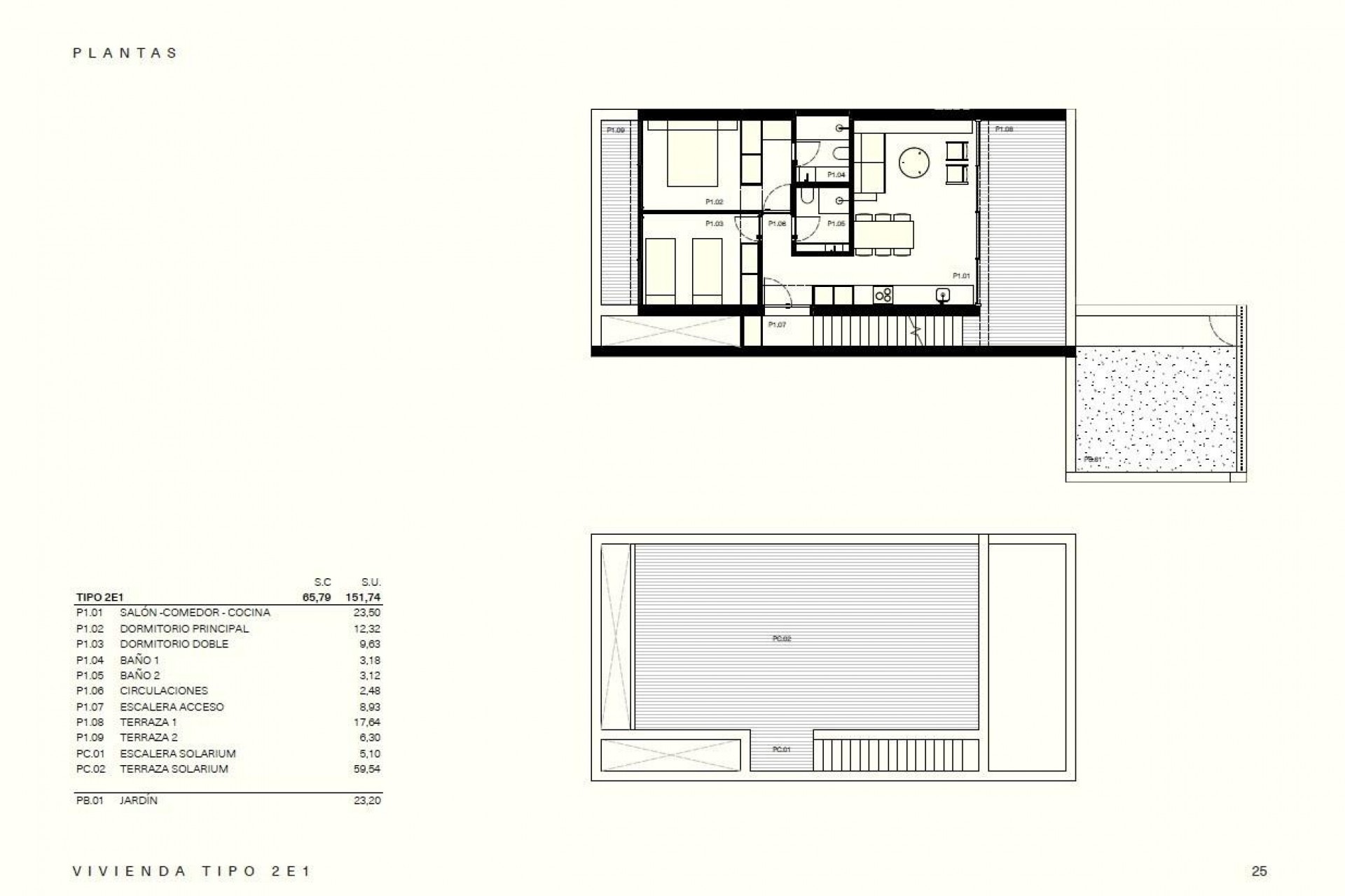
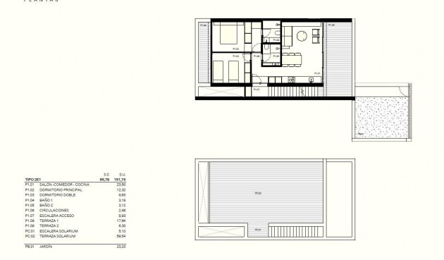
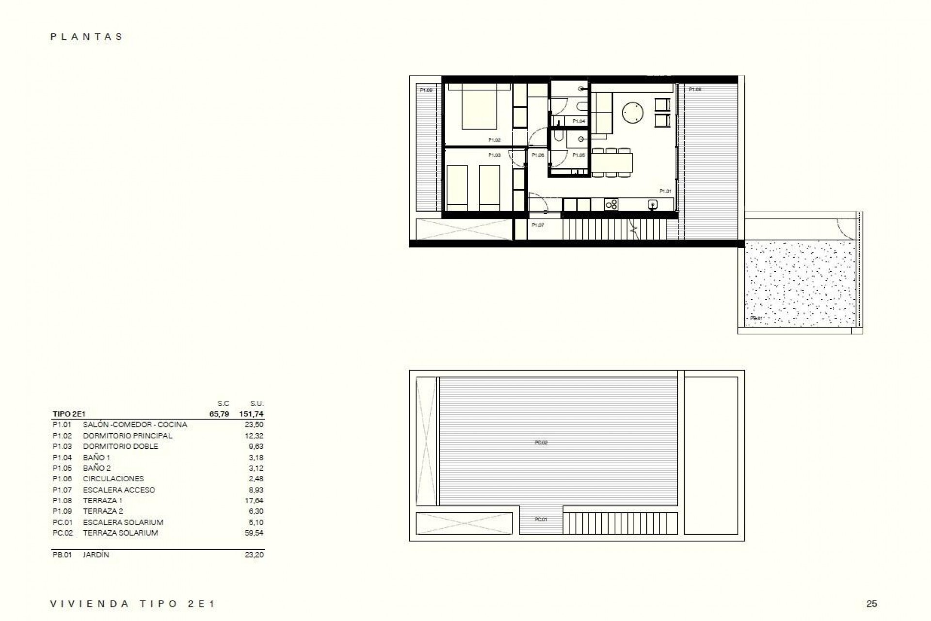
  • 65m2
  • 23m2
  • 2
  • 2
  • Ja

Funksjoner

Soverom: 2
Bad: 2
Inne: 65m2
Plott: 23m2
Basseng: Ja
Parking - Space
Beach: 3500 Meters
Terrace: 82 Msq.
Storage / Trastero
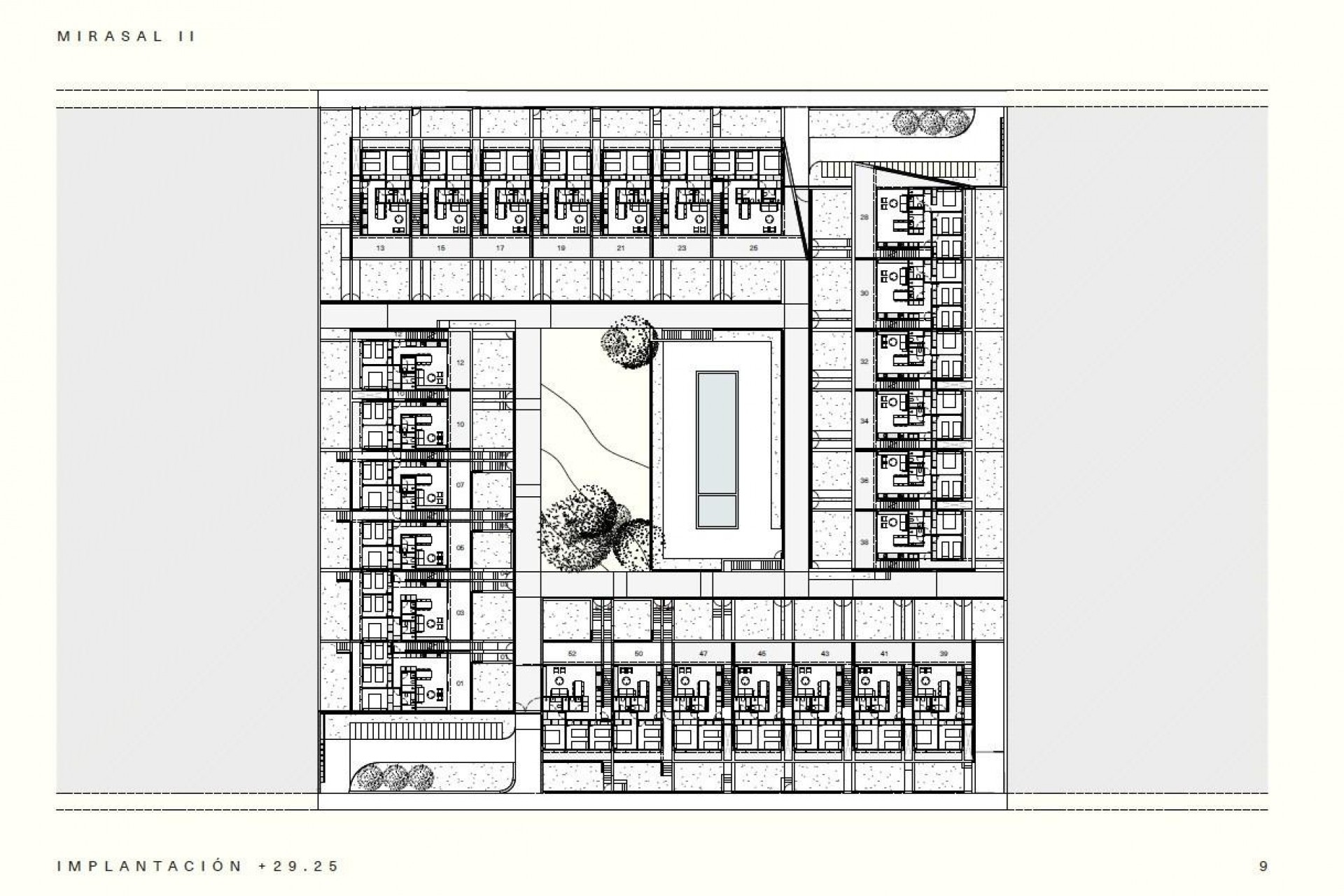
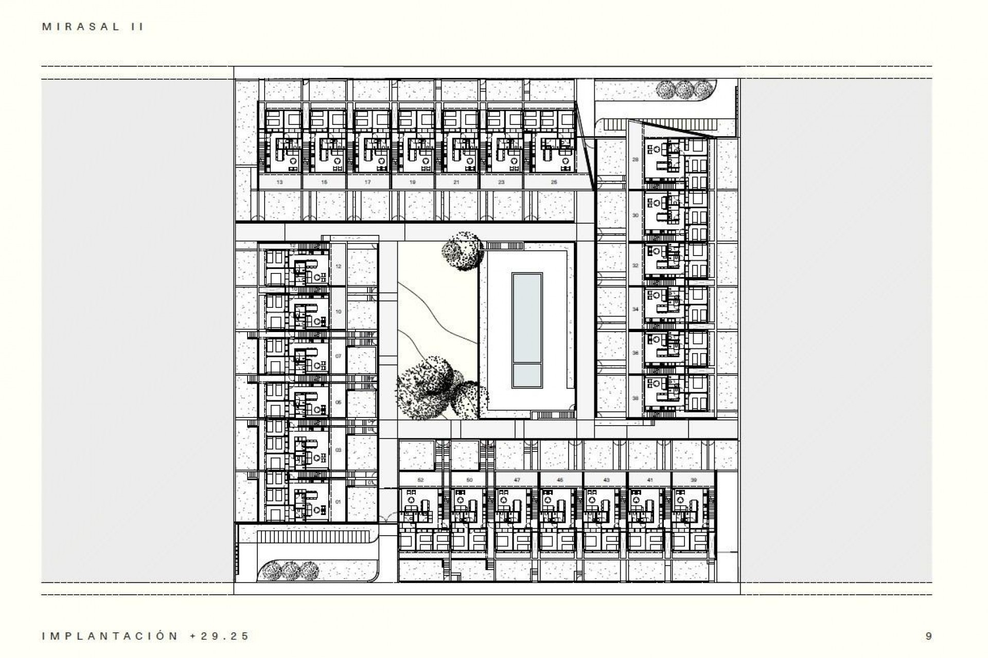
Garden
Gated
Near Schools
Near Commercial Center
Location: Coastal, Urbanisation
Communal Pool
Solarium: Yes
Air Conditioning: Pre-Installed
Number of Parking Spaces: 1
Double Bedrooms: 2
Useable Build Space: 60 Msq.
Near Golf / Golf Resort Property

Beskrivelse

Kart

WhatsApp