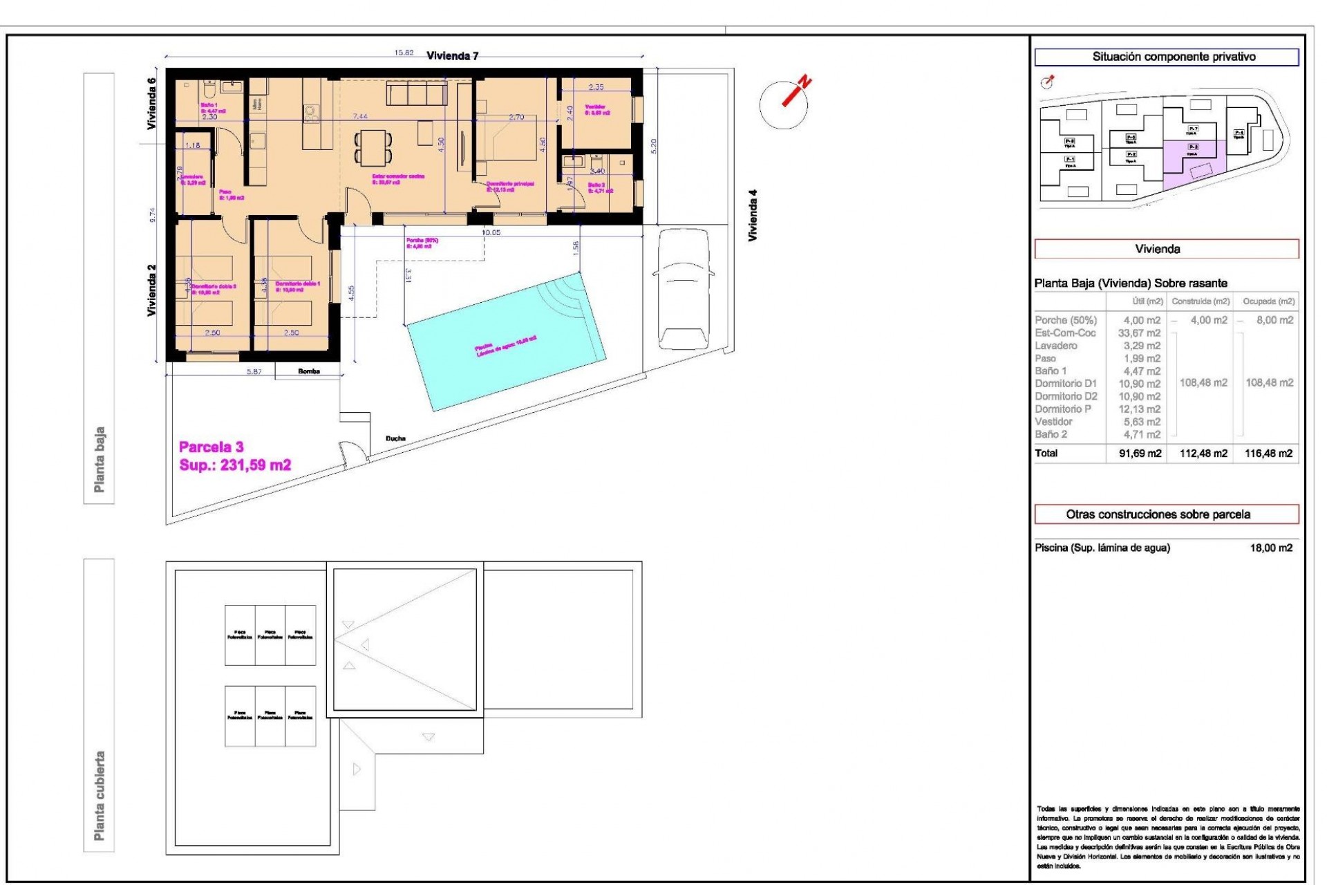
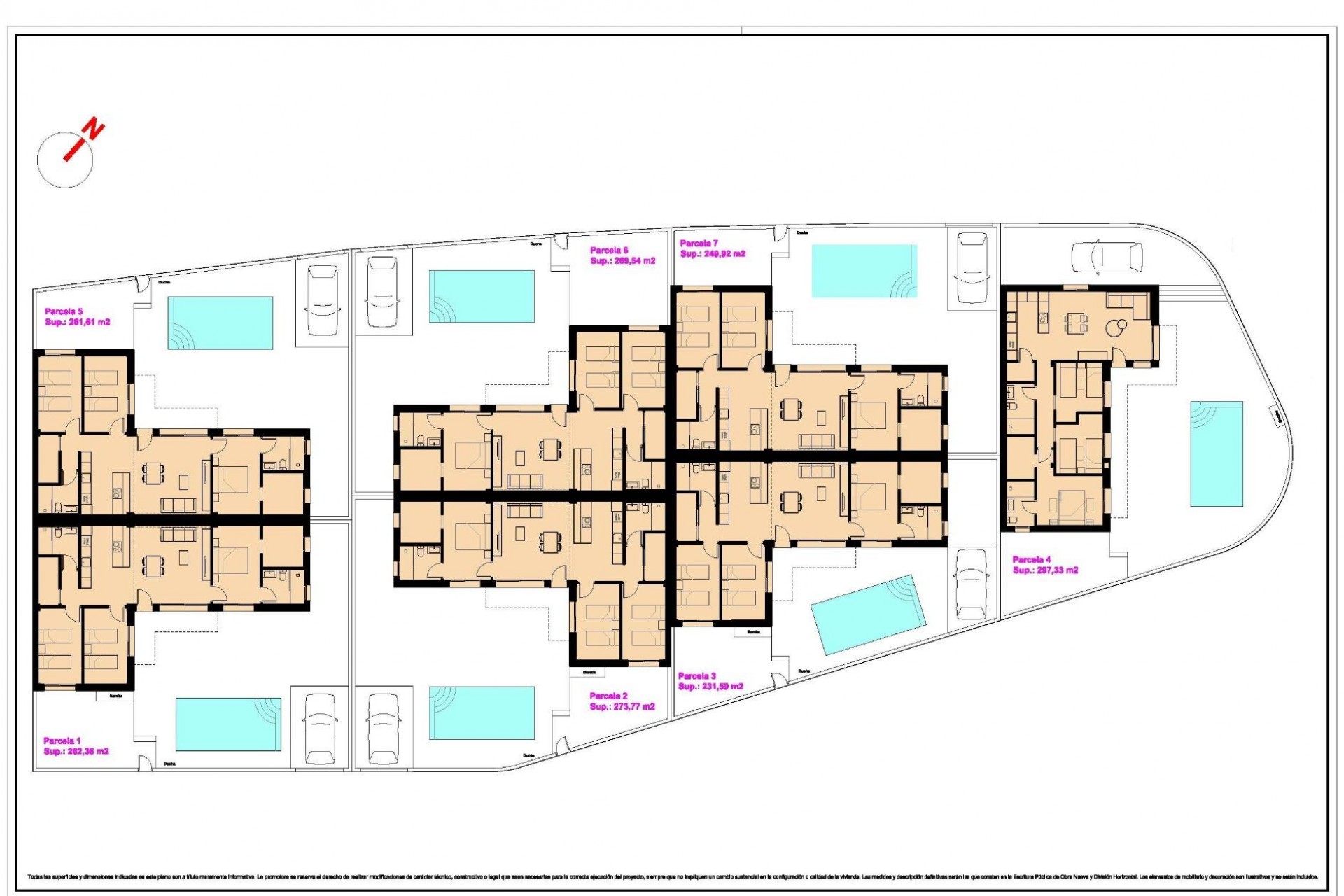
MEDITERRANEAN LIVESTYLE ALL ON ONE LEVEL Landsbyen Daya Nueva er den perfekte kombinasjonen av en rolig og komfortabel livsstil på landet og de livlige kystområdene på Costa Blanca, bare en kort kjøretur unna. Dette prosjektet med nybygde, semi-frittstående og frittstående villaer er designet med stor oppmerksomhet på detaljer og bygget med høy standard. Alle villaene vil ha sin egen private svømmebasseng. DIN EGEN PLASS Å BO, ALT PÅ ÉN ETASJE Designet har et lyst, friskt og moderne preg. Ligger i en liten landsby i den sørlige delen av provinsen Alicante. Landsbyen heter Daya Nueva. Nybyggede villaer i ett plan i den nye delen av Daya Nueva. Bare noen få minutters gange fra sentrum av landsbyen. Eiendommen består av 3 soverom, 2 bad og et privat svømmebasseng på 18 m². Stue/spisestue med dobbel takhøyde, åpen kjøkkenløsning, naturlig lys og mulighet for solarium mot ekstra kostnad. Hovedsoverommet har mulighet for walk-in-closet og eget bad. Ligger i et nytt og rolig boligområde, ca. 10 minutter fra stranden La Marina del Pinet og Guardamar del Segura. Enkel tilgang til motorveien A-70 og ca. 25 minutter fra Alicante internasjonale flyplass.