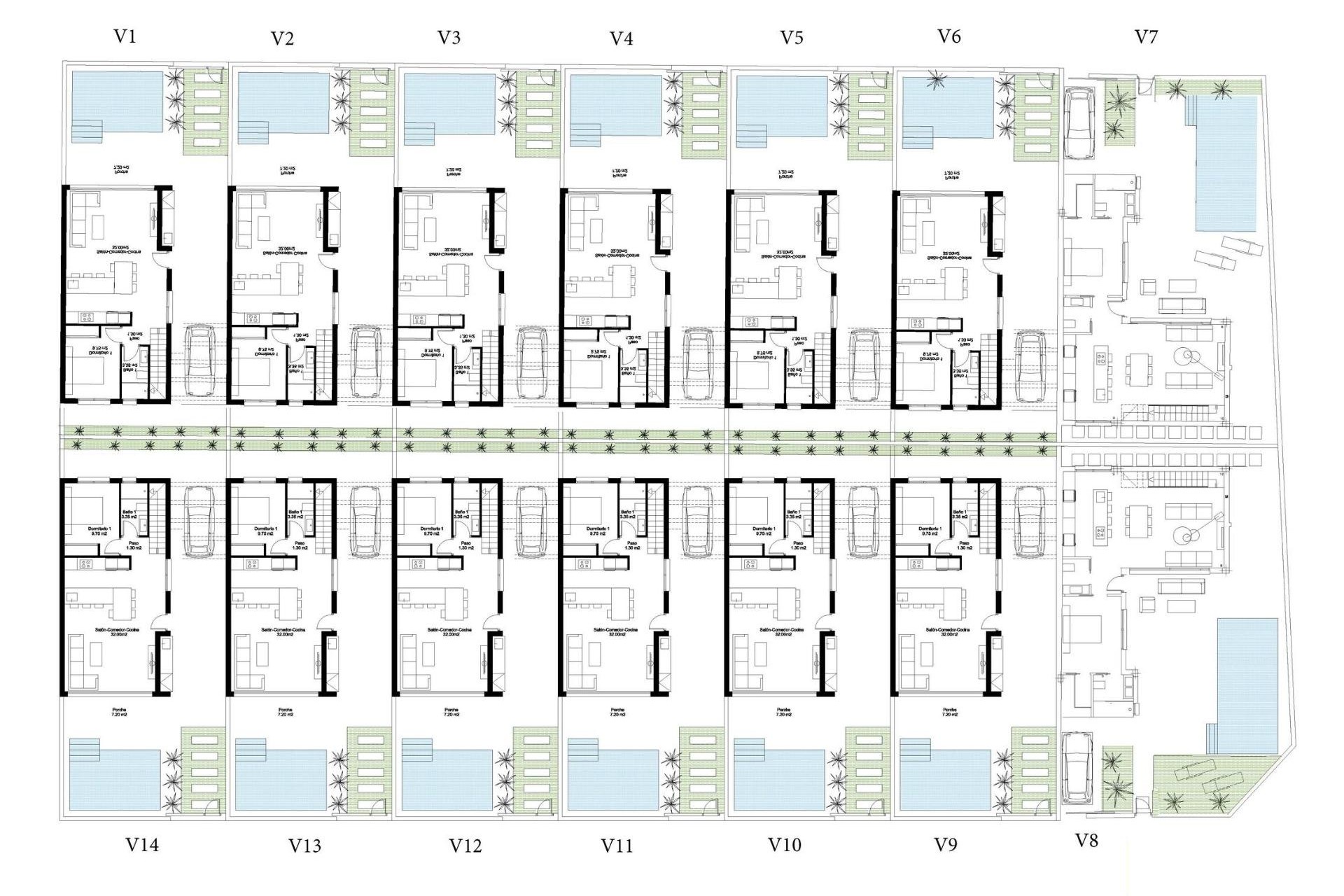
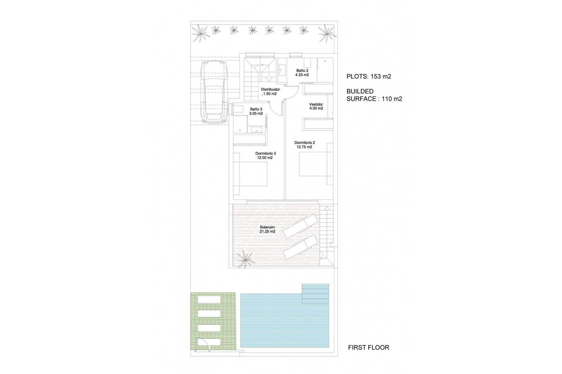
NYBYGDE VILLAER I SAN JAVIER Nybyggprosjekt av frittliggende villaer i San Javier. Nybygde villaer er fordelt over to etasjer pluss den romslige takterrassen med vakker utsikt over omgivelsene. I første etasje er det en lys stue med åpen kjøkkenløsning og utgang til terrassen, et dobbelt soverom med garderobe og et bad. I første etasje er det to romslige soverom, det ene med innebygd garderobe og det andre med omkledningsrom og bad en suite. Privat hage med basseng og parkeringsplass. San Javier ligger nær alle fasiliteter med lett tilgang til stranden, vannsport, butikker og transportnettverket. Her kan du nyte alle fasilitetene som San Javier har å tilby, som de lokale butikkene, barene og restaurantene, i tillegg til å være i nærheten av kjøpesentre, flyplassen i Murcia og alle de vakre stedene som finnes langs Mar Menor. Corvera/Murcia flyplass ligger 30 minutter unna, og Alicante flyplass ligger 45 minutter unna.