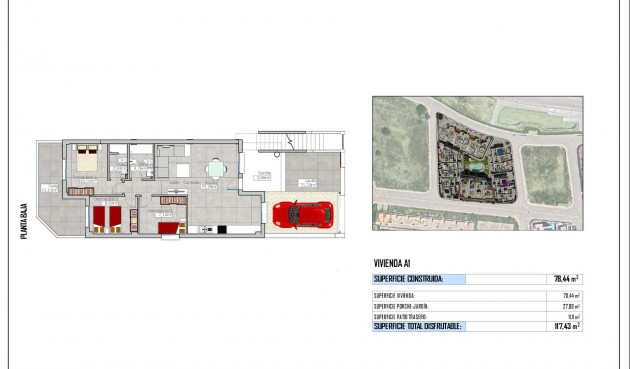
Nye bungalower og rekkehus i Cox, Alicante Eksklusivt boligprosjekt med 26 boliger Oppdag dette nye boligområdet i Cox, en sjarmerende by i Vega Baja-regionen i Alicante. Prosjektet tilbyr 26 moderne boliger, inkludert bungalower og rekkehus med 2 eller 3 soverom, designet for å gi komfort, privatliv og middelhavsliv på sitt beste. Cox er kjent for sitt fredelige miljø, tradisjonelle gastronomi og vakre naturomgivelser, noe som gjør det til et ideelt sted for både familier, ferierende og investorer. Eiendomsalternativer tilpasset din livsstil Velg mellom en rekke boligtyper tilpasset ulike behov: Bungalower i første etasje med privat hage Bungalower i øverste etasje med terrasse og privat solarium Rekkehus med hage, flere terrasser og privat solarium Alle bungalower i første etasje og rekkehus har privat parkering på tomten, noe som sikrer bekvemmelighet og sikkerhet. Hver bolig er designet med funksjonelle planløsninger, rikelig med naturlig lys og en tradisjonell estetikk med moderne interiør. Kvalitetsfunksjoner og moderne bekvemmeligheter Boligene er utstyrt med viktige funksjoner av høy kvalitet som forbedrer hverdagen. Disse inkluderer LED-belysning innvendig og utvendig, elektriske persienner, innebygde garderober, sikkerhetsdør og forhåndsinstallasjon for solcellepaneler. Kjøkkenene er fullt utstyrt med hvitevarer, mens badene inkluderer møbler, speil og dusjvegger. Solariumene har også utendørs sommerkjøkken, ideelt for å underholde og nyte middelhavsklimaet. Fellesfasiliteter for alle beboere Boligkomplekset tilbyr attraktive fellesarealer, inkludert et svømmebasseng omgitt av solterrasser og anlagte områder, perfekt for avslapning og sosialt samvær. Førsteklasses beliggenhet med utmerket tilknytning Dette boligprosjektet ligger i et område med gode transportforbindelser og tilbyr rask tilgang til større byer og viktige tjenester: Alicante internasjonale lufthavn: 40 km Orihuela: 8 km Elche: 20 km Murcia: 25 km Alicante by: 48 km La Finca Golf: 12 km Vistabella Golf: 14 km Cox gir enkel tilgang til motorveiene AP 7 og A 7, noe som gjør det enkelt å reise rundt på Costa Blanca. Nærliggende attraksjoner inkluderer shoppingområder, idrettsanlegg, helsesentre og vakre sandstrender som Guardamar del Segura og Torrevieja. Ditt nye hjem i hjertet av Costa Blanca Enten du er på utkikk etter en permanent bolig, en feriebolig eller en investeringseiendom, tilbyr disse boligene i Cox enestående verdi og livsstil. Kontakt oss i dag for å avtale et besøk og sikre deg din ideelle bolig i dette eksepsjonelle boligprosjektet.