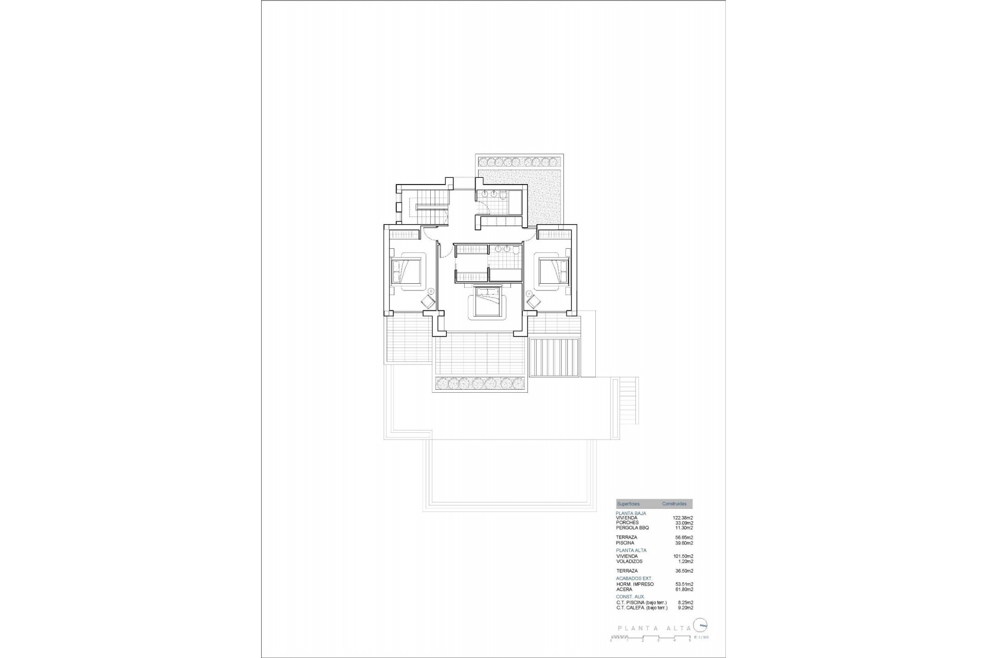
Villa med sjøutsikt og ibizansk sjarm i La Fustera, Benissa Denne fantastiske nybygde villaen kombinerer elegansen i moderne arkitektur med varmen og karakteren i ibizansk design. Den ligger i det ettertraktede området La Fustera (Benissa Costa) og har panoramautsikt over havet, og ligger bare noen minutter fra stranden, supermarkeder, restauranter og andre viktige tjenester. Eiendommen ligger på en tomt på over 1000 m² og er fordelt på to etasjer med totalt 4 romslige soverom og 3 bad. Første etasje har åpen planløsning med stor stue, spisestue og fullt utstyrt kjøkken med kjøkkenøy og frokostbar. Skyvedører fra gulv til tak forbinder interiøret med en romslig terrasse mot sør, noe som skaper en perfekt overgang mellom inne og ute. Denne etasjen har også et soverom og et bad. Utenfor har villaen flere avslapnings- og spiseområder, en pergola-overbygd grillplass og et innbydende svømmebasseng omgitt av frodig hage og solsenger. I øverste etasje er det tre ekstra soverom (inkludert master suite med eget bad og privat terrasse), samt en andre terrasse med vakker utsikt. Boligen er fullt utstyrt for komfort hele året og har gulvvarme, sentral klimaanlegg og høykvalitets finish overalt. Ytterligere funksjoner inkluderer et teknisk rom for varmesystemet og et separat rom for bassengutstyr, begge plassert under bakken for å maksimere plass og funksjonalitet. Sikre deg din drømmevilla i La Fustera, Benissa Costa, og omfavn den ultimate middelhavsstilen med fantastisk havutsikt og uovertruffen komfort.
Denne informasjonen gitt her er underlagt feil og inngår ikke i noen kontrakt. Tilbudet kan endres eller trekkes tilbake uten varsel. Prisene inkluderer ikke andre kostnader
Bonavida Spain © 2026 Cookies & Privatliv · Juridisk merknad · Forpliktelse · Web kart · Etisk kanal.
Design: Mediaelx
Først av alt, takk for at du kontakter oss.
Først av alt, takk for at du kontakter oss.
Vi har mottatt en forespørsel om en rapport hvis du senker prisen på eiendommen med referansen: NB-77225
I mellomtiden, ta en titt på dette valget av lignende egenskaper, som kan være av interesse for deg: