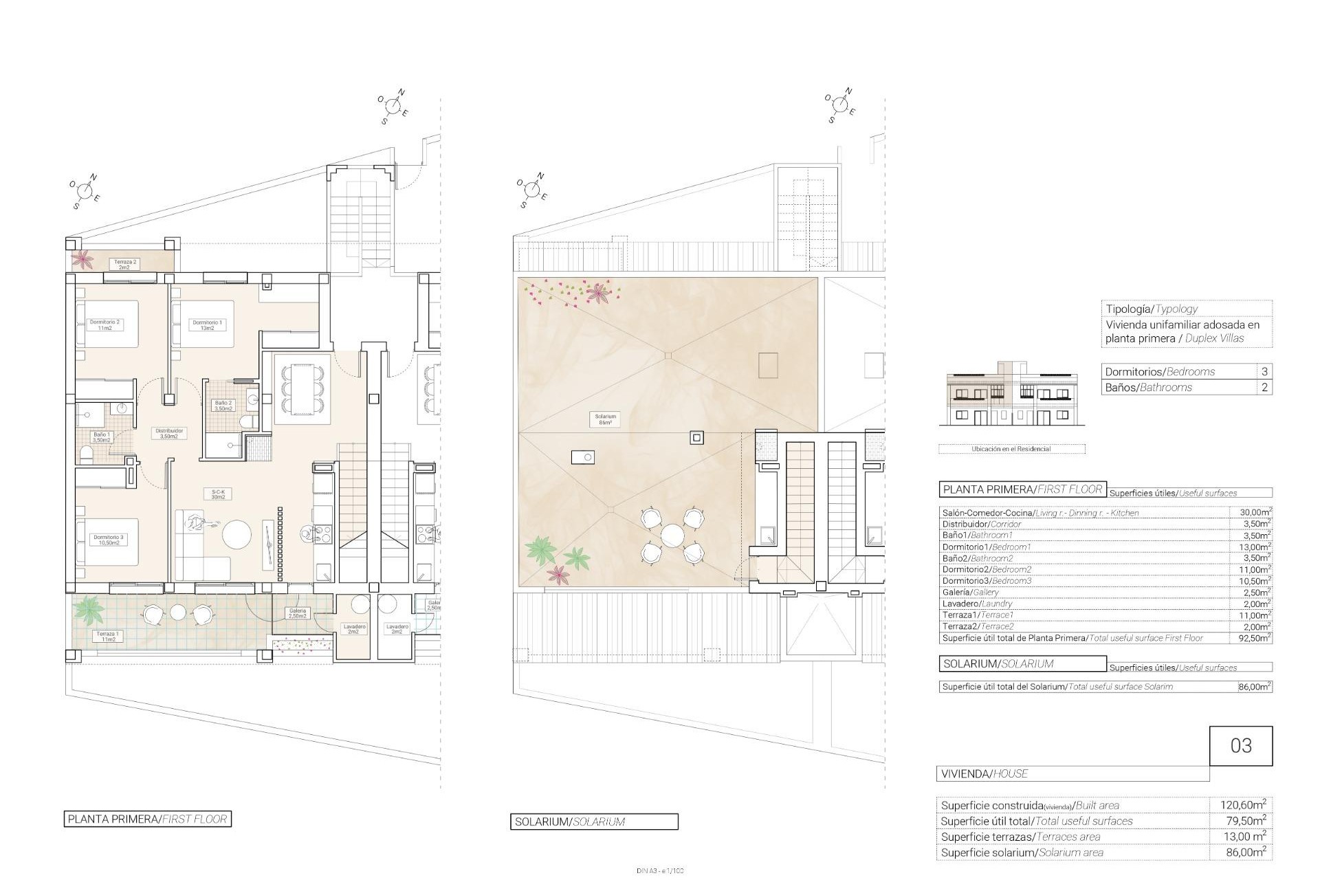
BUNGALOWS DE OBRA NUEVA EN HONDON DE LAS NIEVES 4 bungalows de obra nueva situados en Hondón de las Nieves (Alicante) Todos los bungalows disponen de 3 dormitorios con armarios empotrados, 2 baños, amplio salón comedor, cocina amueblada y terraza. Las viviendas están disponibles en planta baja con terraza/jardín delantero y trasero y en planta alta con terraza y solarium privado. Las viviendas de la primera planta disponen de placas fotovoltaicas en el tejado para ahorro energético. Las cocinas están totalmente amuebladas y acabadas con encimeras de granito o aglomerado sintético (silestone o simular). Los baños están acabados con sanitarios de alta calidad y grifería con cisterna empotrada. Estas viviendas cuentan con preinstalación de aire acondicionado por conductos con bomba de calor, ventilación forzada con recuperador de calor, sistema de aerotermia para agua caliente sanitaria, los más modernos aislamientos térmicos y acústicos, carpintería exterior de aluminio con rotura de puente térmico y persianas. Hondón de las Nieves es un municipio de la Comunidad Valenciana, España. Está situado al suroeste de la provincia de Alicante, en la comarca del Vinalopó Medio. Las playas y el aeropuerto de Alicante están muy cerca, a sólo 30 minutos en coche.