Apartment | Obra nueva Hondón de las Nieves · Pueblo

Ref. NB-16064 198.000€

Apartment | Obra nueva Hondón de las Nieves · Pueblo

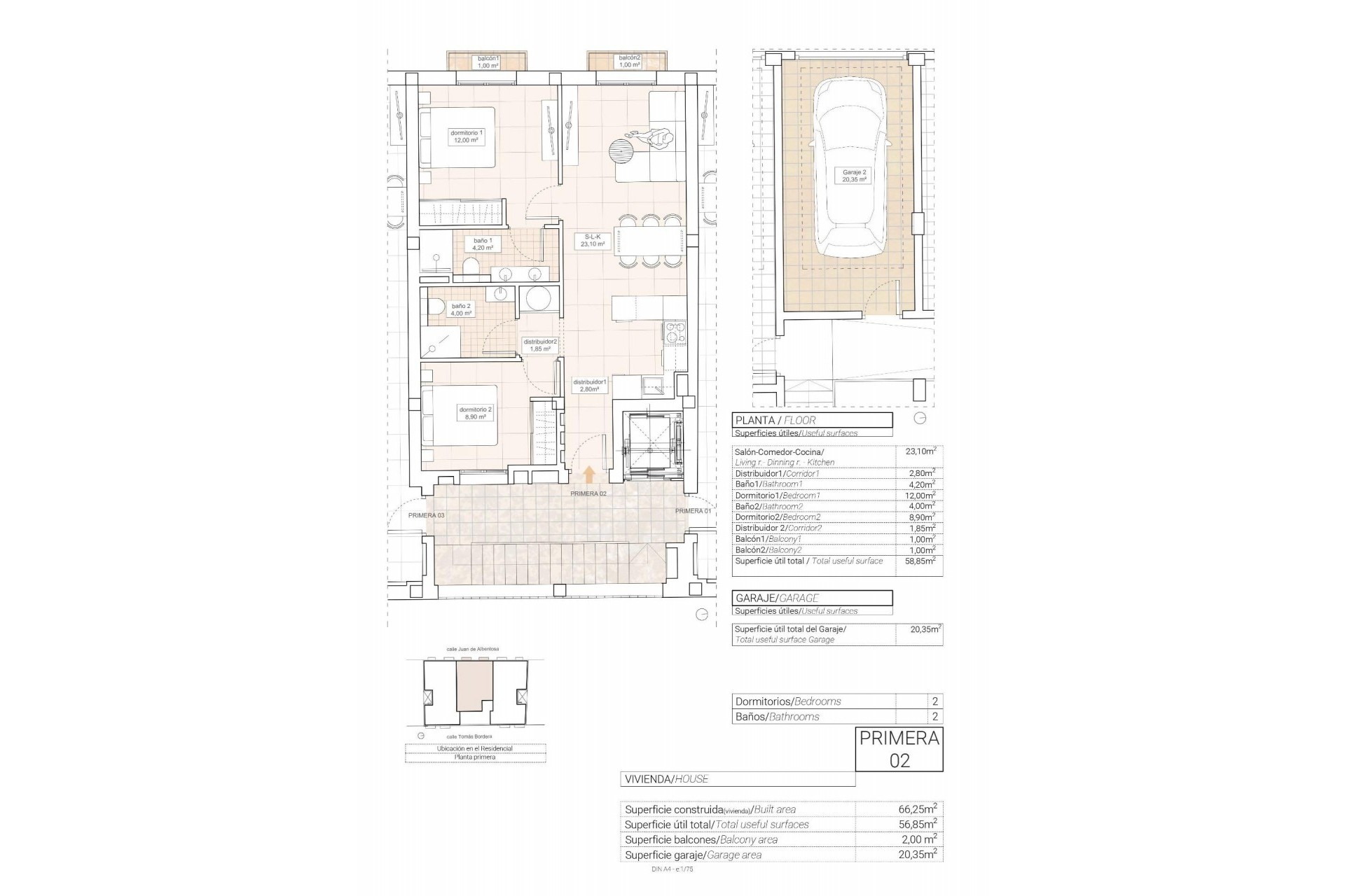
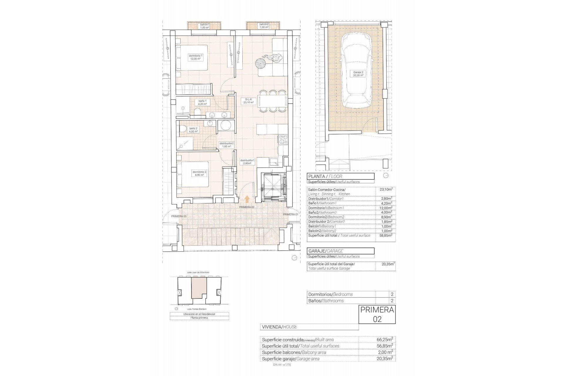
  • 66m2
  • 2
  • 2

Características

Habitaciones: 2
Baños: 2
Construidos: 66m2
Beach: 37000 Meters
Elevator/Lift
Near Schools
Air Conditioning: Pre-Installed
Number of Parking Spaces: 1
Double Bedrooms: 2
Key Ready
Useable Build Space: 56 Msq.
Parking - Space
Location: Rural
Terrace: 2 Msq.

Descripción

Mapa

WhatsApp