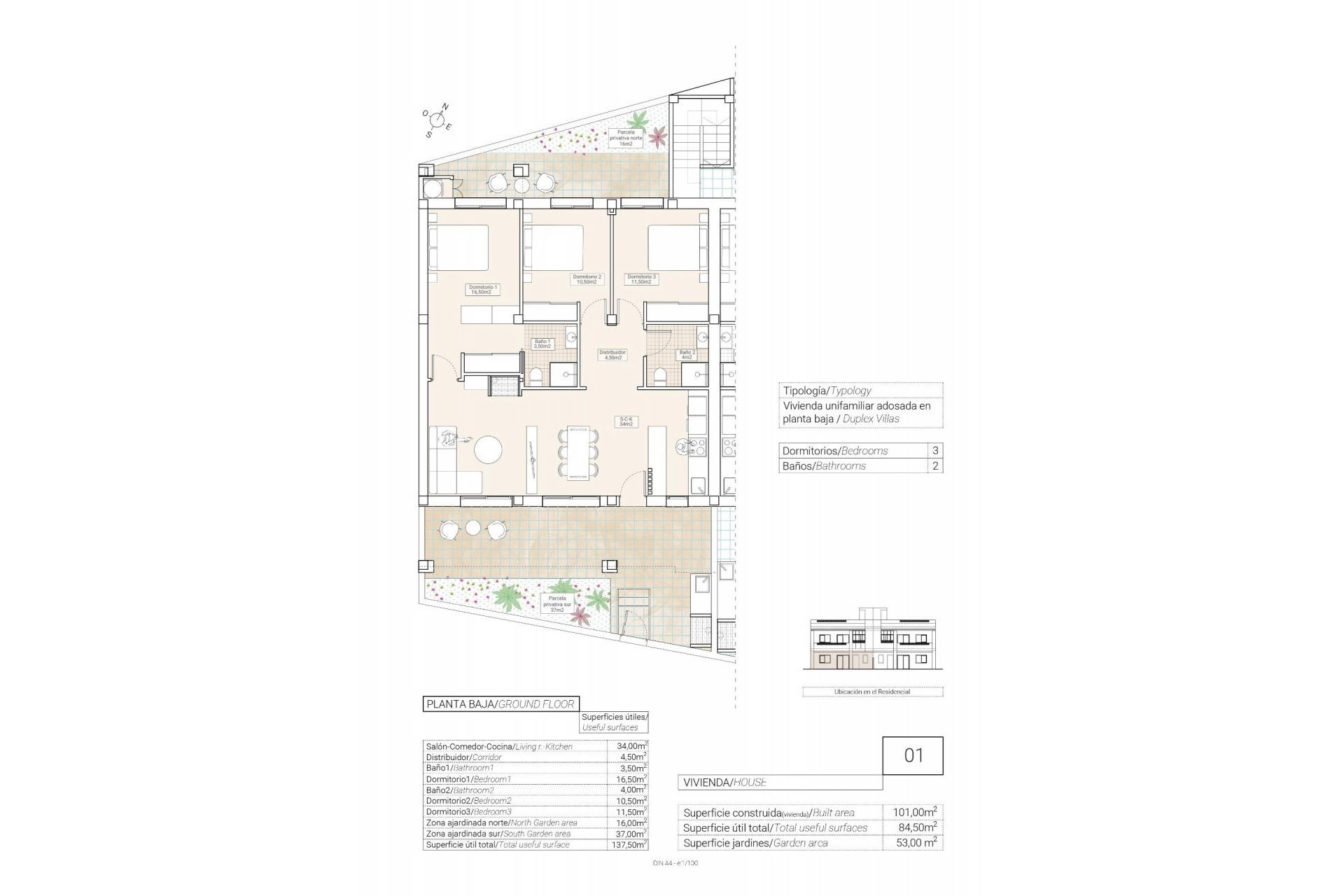
NEW BUILD BUNGALOWS IN HONDON DE LAS NIEVES New Build 4 bungalows located in Hondón de las Nieves (Alicante) All bungalows have 3 bedrooms with fitted wardrobes, 2 bathrooms, large living room, fitted kitchen and terrace. The properties are available on the ground floor with front and rear terrace/garden and on the top floor with terrace and private solarium. The first floor properties have photovoltaic panels on the roof for energy saving. The kitchens are fully furnished and finished with granite or synthetic agglomerate worktops (silestone or simular). The bathrooms are finished with high quality sanitary ware and taps with built-in cistern. These homes have pre-installation for ducted air conditioning with heat pump, forced ventilation with heat recovery, aerothermal system for domestic hot water, the most modern thermal and acoustic insulation, aluminium exterior carpentry with thermal bridge break and shutters. Hondón de las Nieves is a town in the Valencian Community, Spain. It is located in the southwest of the province of Alicante, in the region of Vinalopó Medio. The beaches and Alicante Airport are closely just 30 minutes drive away.