Villa | New Build La Manga Club · La Manga Club

Ref. NBS-15141 840.000€

Villa | New Build La Manga Club · La Manga Club

  • 248m2
  • 570m2
  • 4
  • 3
  • Yes

Features

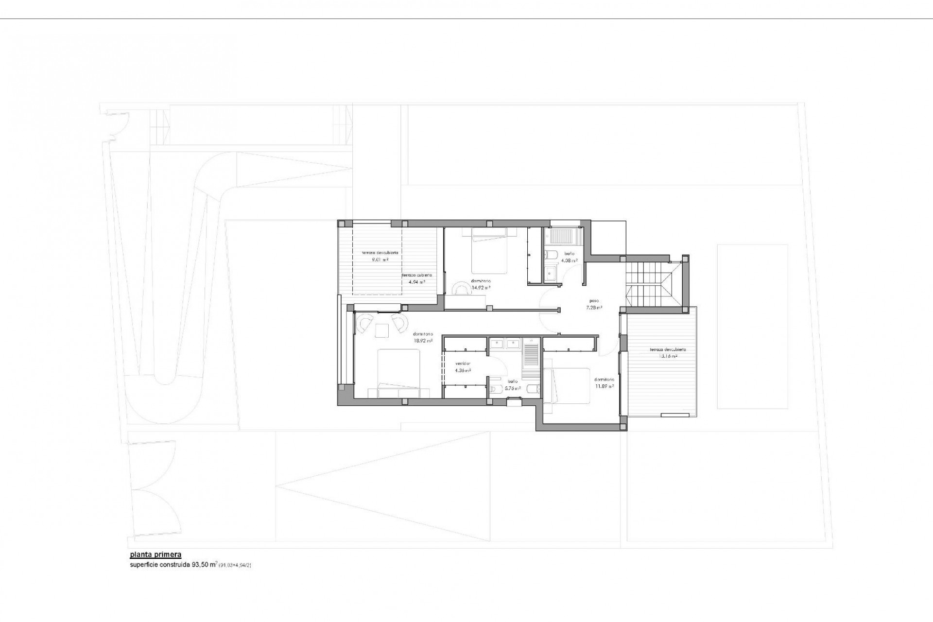
Bedrooms: 4
Bathrooms: 3
Built: 248m2
Plot: 570m2
Pool: Yes
Private pool
Garden
Gated
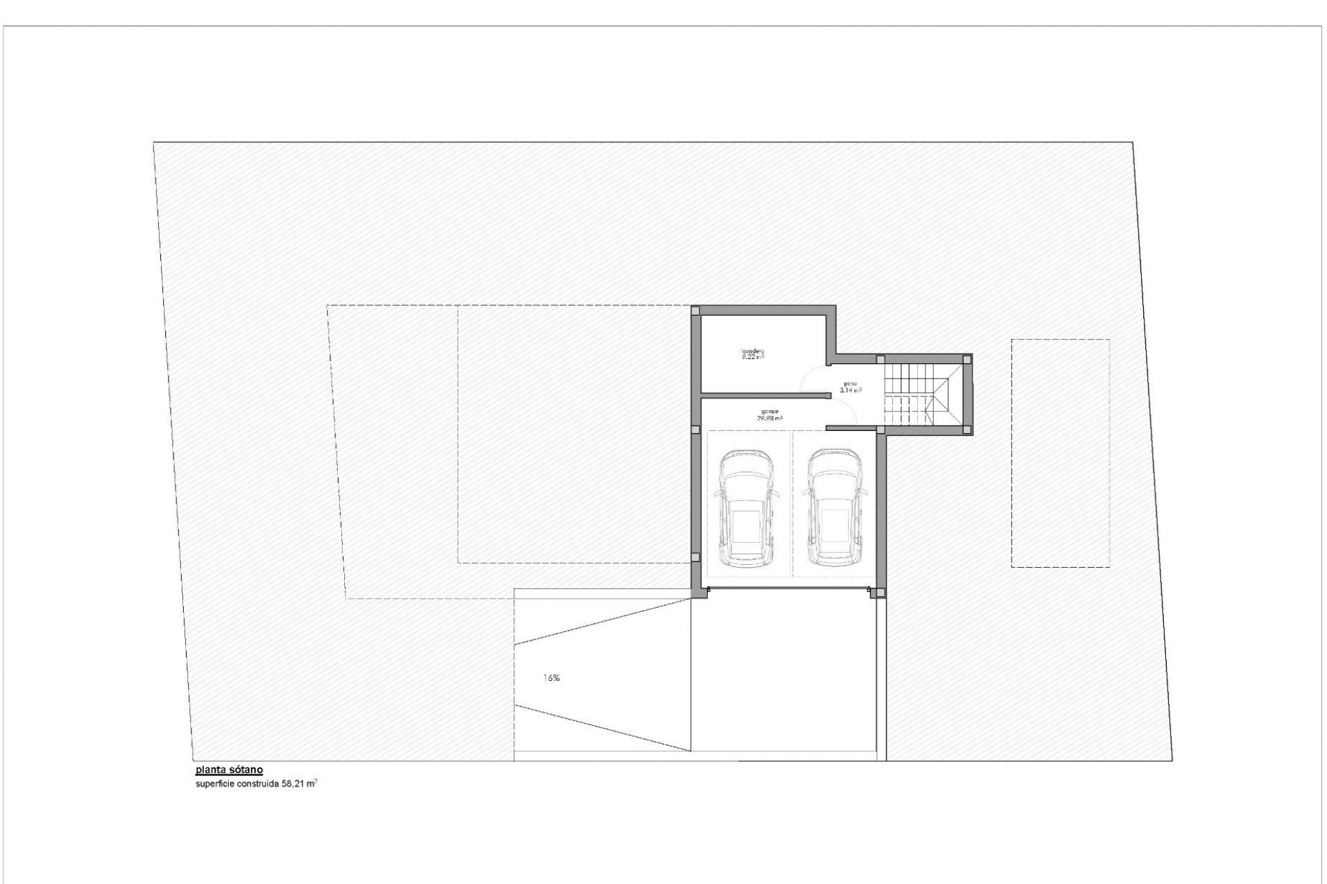
Number of Parking Spaces: 2
Near Schools
Near Commercial Center
Location: Coastal, Urbanisation
Under-Build / Basement
Beach: 2500 Meters
Double Bedrooms: 4
Near Golf / Golf Resort Property
Useable Build Space: 190 Msq.
Air Conditioning: Yes, Pre-Installed
Terrace: 108 Msq.

Description

Map

WhatsApp