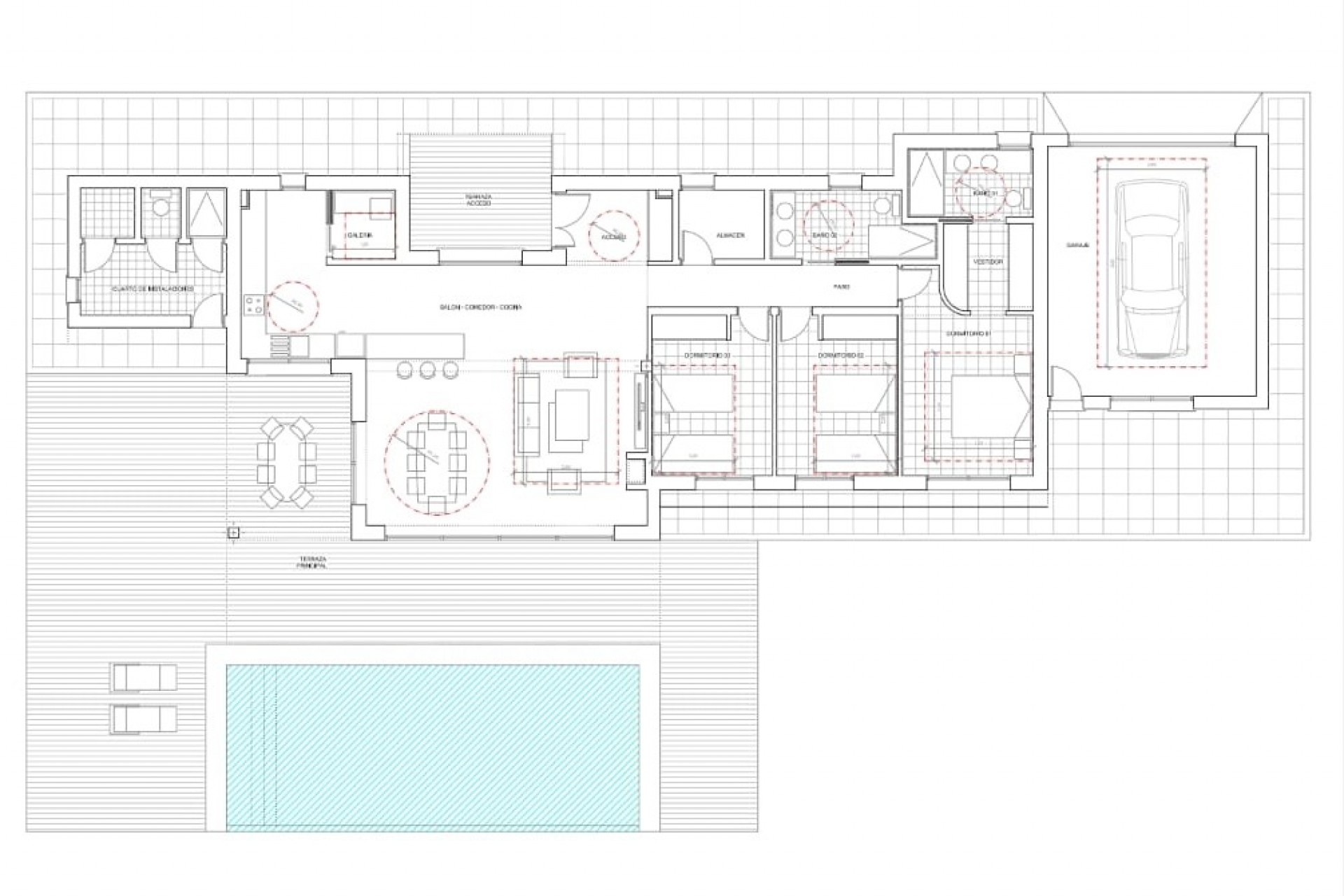
This off-plan villa offers a modern design with a 185 m² build area, featuring two bedrooms, two bathrooms, and a bright open-plan kitchen and living space. The layout is functional and designed for comfortable year-round living. A private infinity swimming pool and a garage is included in the price, as well as a pool room with shower, toilet, sink and space for the pool pump etc. and the home can be customised to suit your needs.The villa will be built on a 10,000 m² plot, which is not included in the base price. We offer a wide selection of over 150 legal building plots across various countryside locations. Plot prices and final costs may vary depending on the location and features chosen.This type of new build is ideal for those seeking space, privacy, and flexibility, while still being within easy reach of towns like Pinoso, La Romana, or Monóvar. These areas are known for their scenic surroundings, vineyards, and traditional Spanish charm, yet they remain close to the coast and Alicante airport. Perfect for full-time living or as a holiday retreat.We have a large portfolio of properties in the Costa Blanca and Costa Calida areas, specialising in country properties, villas, fincas, building plots and design and build options in the Alicante and Murcia regions with a particular emphasis on Elda, Monovar, Pinoso, Sax, Villena, Aspe, Fortuna, Albacete and many more surrounding areas. We have been established since 2004 and have decades of experience between the team which we bring to bear to help you find and secure your new dream home. We help you every step of the way to make sure your purchase in Spain is safe and hassle free. We are not here to sell you a property, we are here to help you realise your dream and find what is right for you. With us you are in the safest hands. Contact us now to have a no obligation chat about how you too can realise your dreams.
This info given here is subject to errors and do not form part of any contract. The offer can be changed or withdrawn without notice. Prices do not include purchase costs.
Bonavida Spain © 2026 Cookies & Privacy · Legal · Commitment · Web map · Ethical Channel.
Design: Mediaelx
First of all, thanks for contacting us.
We have received your request regarding the property reference: BO-96136. One of our agents will contact you as soon as possible.
First of all, thanks for contacting us.
We have received a request for a report if you lower the price of the property with the reference: BO-96136
In the meantime, please have a look at this selection of similar properties, that might be of interest to you: