Apartment | Obra nueva Denia · Camí de Sant Joan

Ref. NBS-51010 330.000€

Apartment | Obra nueva Denia · Camí de Sant Joan

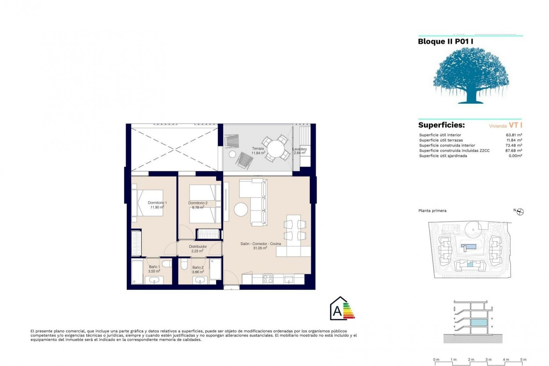
  • 73m2
  • 2
  • 2

Características

Habitaciones: 2
Baños: 2
Construidos: 73m2
Piscina:
Near Train Station
Useable Build Space: 63 Msq.
Terrace: 11 Msq.
Beach: 1000 Meters
Heating: Yes, Air Conditioning: Yes, Pre-Installed
Elevator/Lift
Gated
Near Schools
Near Commercial Center
Location: Coastal, Urbanisation
Communal Pool
Near Trees
Near Bus Route
Number of Parking Spaces: 1
Double Bedrooms: 2

Descripción

Mapa

WhatsApp