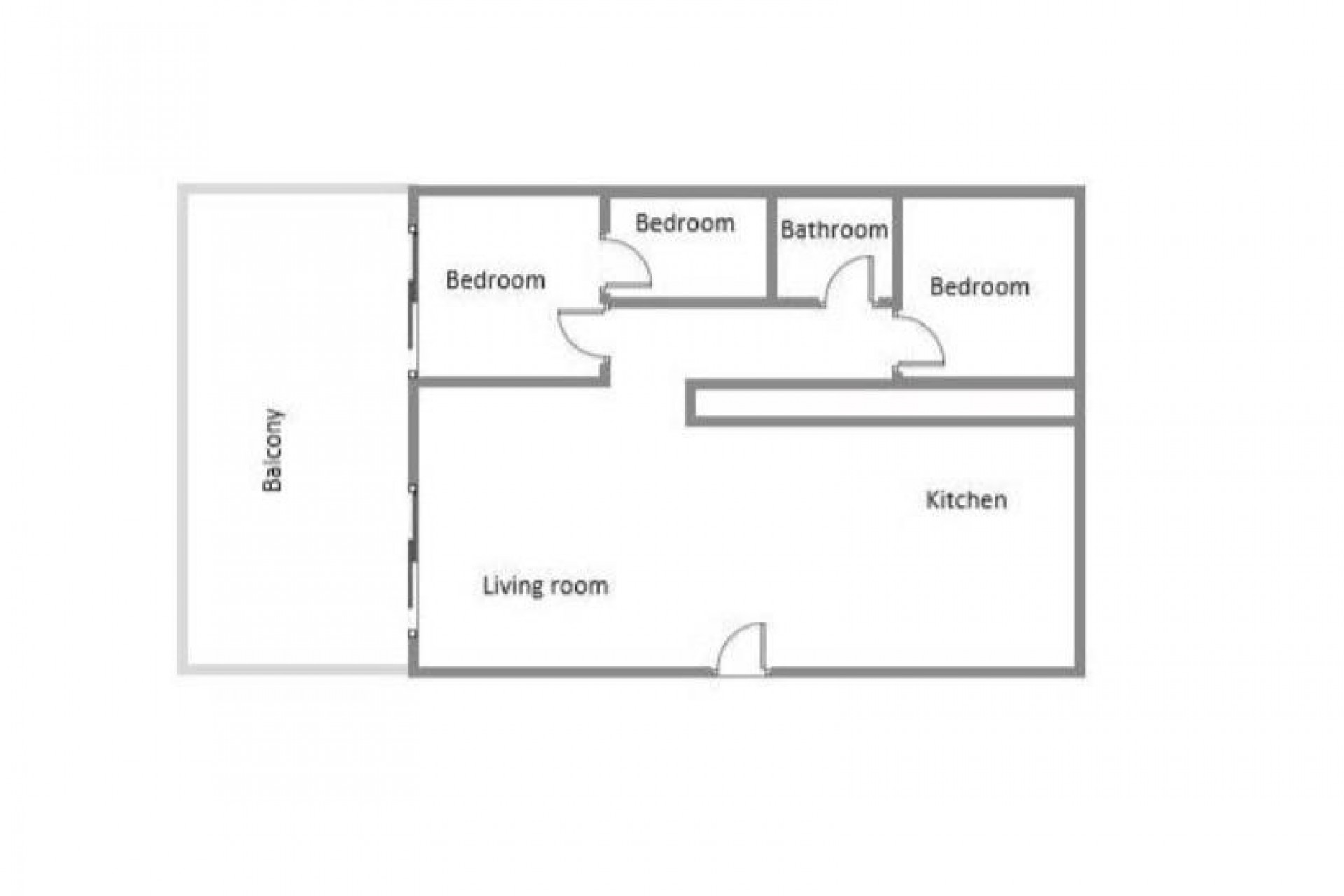
Luminoso y moderno apartamento de 2 dormitorios en Las Colinas Golf Entra en este apartamento luminoso y moderno donde el confort, el estilo y la luz se combinan a la perfección. La cocina abierta y el salón crean un espacio acogedor para cocinar, relajarse o pasar tiempo con la familia y amigos, con mucha luz natural. Desde el salón se accede directamente al balcón soleado, perfecto para un café por la mañana, una copa por la tarde o un momento de tranquilidad con un libro. El dormitorio principal cuenta con baño en suite y acceso directo al balcón, proporcionando un retiro tranquilo al final del día. El segundo dormitorio es versátil y se puede usar como habitación de invitados, oficina o espacio adicional para familiares y amigos. Entre las comodidades adicionales se incluyen un garaje privado, trastero y acceso a una piscina comunitaria bien cuidada, ideal para refrescarse en días cálidos o disfrutar del sol español. Ubicado en un entorno tranquilo pero cerca de restaurantes, cafés, supermercados y hermosas playas, este apartamento ofrece el equilibrio perfecto entre vivir relajado y tener todo al alcance.