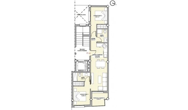
Apartamentos modernos de nueva construcción en el centro de Torrevieja, a solo 600 m del mar Descubra esta exclusiva promoción boutique de solo 8 apartamentos modernos de nueva construcción, perfectamente situados en el corazón de Torrevieja. A solo 600 m de la Playa de Los Locos y a 650 m de la famosa Playa del Cura, con su animado paseo marítimo, estas viviendas ofrecen la combinación ideal entre la vida junto al mar y las comodidades urbanas. Diseño contemporáneo y distribuciones inteligentes Elija entre elegantes apartamentos de 1 dormitorio con 1 baño o amplios apartamentos de 2 dormitorios con 2 baños. Cada propiedad está diseñada con una distribución moderna y funcional que maximiza la luz natural y el confort. Los acabados de alta calidad garantizan la durabilidad y la elegancia, lo que hace que estas viviendas sean perfectas tanto para vivir todo el año como para pasar las vacaciones. Servicios exclusivos del edificio Los residentes pueden relajarse en el solárium comunitario de la azotea o darse un chapuzón en la piscina compartida, el lugar perfecto para desconectar después de un día en la playa. Hay trasteros opcionales disponibles en la azotea por un coste adicional, lo que proporciona mayor comodidad y seguridad. Estilo de vida dinámico en Torrevieja Torrevieja es una animada ciudad costera famosa por sus actividades culturales y de ocio durante todo el año. Con más de 300 días de sol al año, la zona es ideal para disfrutar de la vida al aire libre, los días de playa, los deportes acuáticos y los paseos nocturnos por el paseo marítimo. Todos los servicios esenciales, como supermercados, restaurantes, cafeterías y locales de ocio, se encuentran a poca distancia a pie. Excelente ubicación y conectividad Esta céntrica ubicación ofrece un rápido acceso a las principales atracciones y servicios: Playa de Los Locos: 600 m Playa del Cura: 650 m Puerto deportivo de Torrevieja: 2 km Centro comercial Zenia Boulevard: 8 km Campos de golf: 7-10 km Aeropuerto de Alicante: 45 km Su hogar mediterráneo le espera Tanto si busca un refugio para sus vacaciones, una propiedad de inversión o una residencia permanente, estos modernos apartamentos de nueva construcción en Torrevieja le ofrecen la oportunidad perfecta para disfrutar del estilo de vida mediterráneo en una ubicación privilegiada. Póngase en contacto con nosotros hoy mismo para concertar una visita y asegurarse su lugar en esta exclusiva urbanización costera.