Villa | Obra nueva Aspe · Poligono 19

Ref. NB-30797 498.000€

Villa | Obra nueva Aspe · Poligono 19

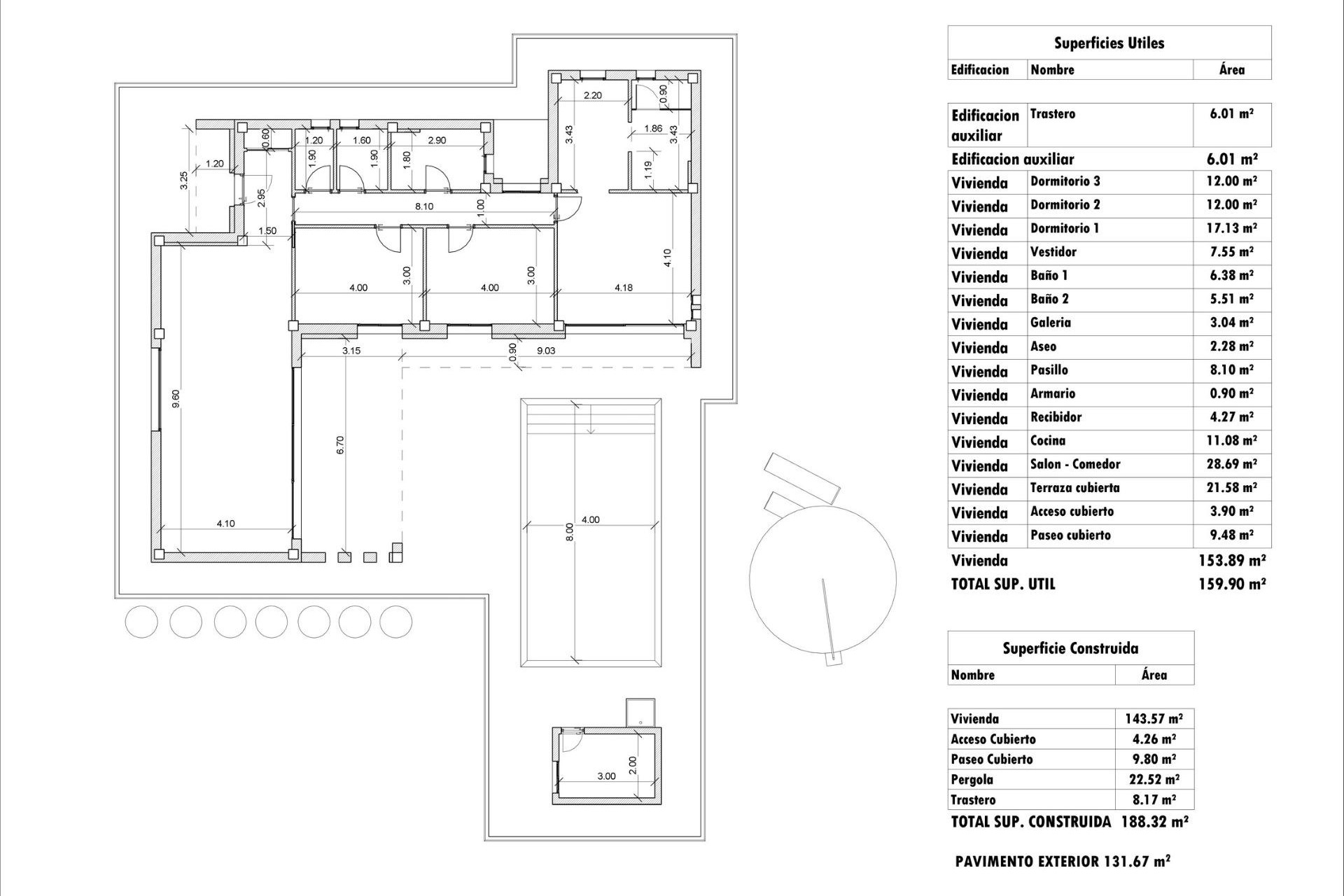
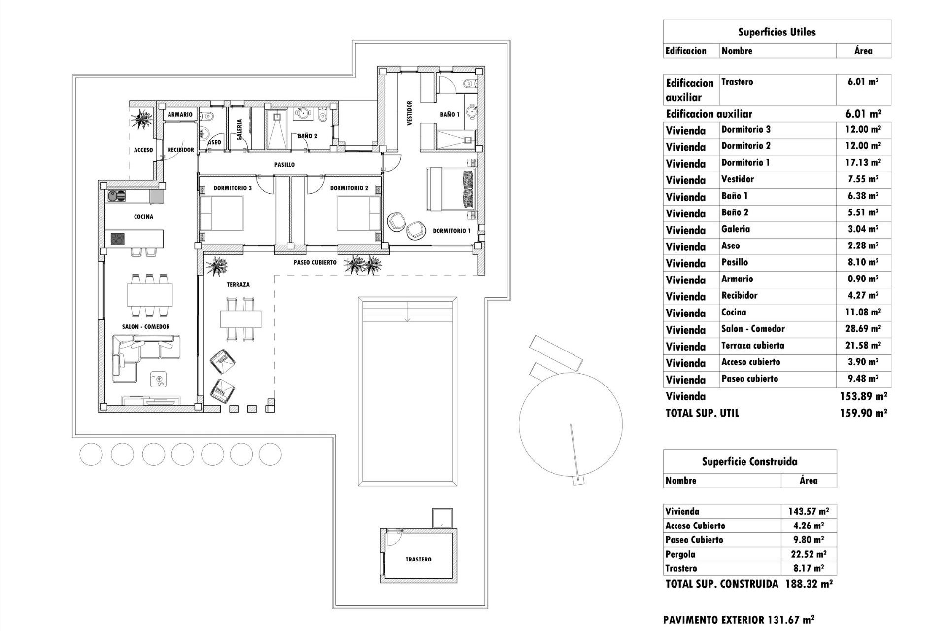
  • 188m2
  • 13.172m2
  • 3
  • 3

Características

Habitaciones: 3
Baños: 3
Construidos: 188m2
Parcela: 13.172m2
Piscina:
Private pool
Garden
Gated
Near Schools
Double Bedrooms: 3
Air Conditioning: Pre-Installed
Number of Parking Spaces: 1
Parking - Space
Location: Rural, Mountain
Terrace: 36 Msq.
Useable Build Space: 159 Msq.
Beach: 25000 Meters
Storage / Trastero

Descripción

Mapa

WhatsApp